Продажа 1-к квартиры, Кировский (ул. Кутузова)

1-комн.

квартира

37,6 м²

общая

16 из 19

этаж

Мон. кирп.

Тип дома

Описание

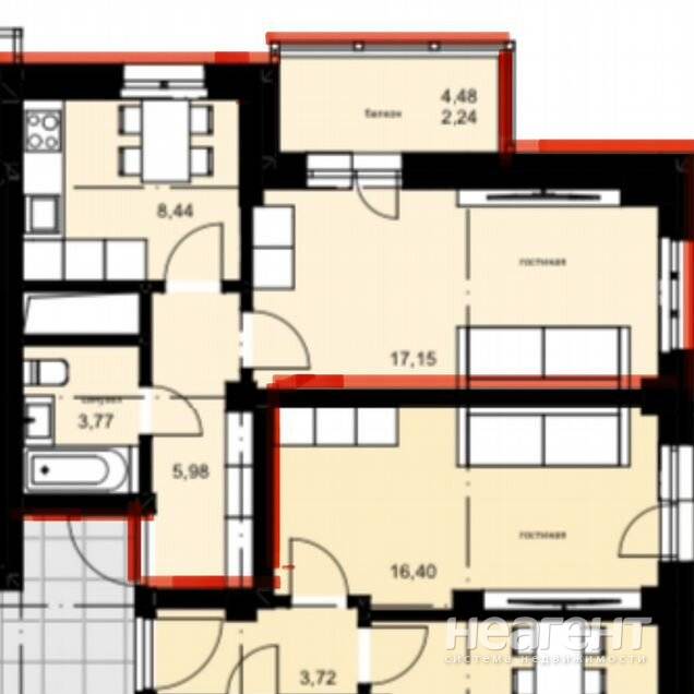
Продаю 1-комнатную квартиру площадью 37,6 кв. м на 16 этаже 19 этажного монолитно-кирпичного дома. Собственник. Дом сдан. в наличии двухкомнатные, однокомнатные, студии различных планировок, на разных этажах. Строительный номер квартиры 178. Квартира в новостройке лето, дом #1 по адресу Красноярск. Кировский район, ул. Кутузова, стр. 1. Общая площадь квартиры-37,58 кв. м, комната-17,15 кв. м. Три окна в квартире. Квартира на две стороны. Тип дома-монолитно-кирпичный. Компания застройщик ГК Альянс-строй. Получистовая отделка. Железная входная дверь. Натяжной потолок. Срок ввода дома в эксплуатацию январь 2026 год.

Инфраструктура

4 998 140 ₽
132 929 ₽/м²
19 апреля
Контакт собственника

+7 9**-***-****

Поделиться
Избранное
На карте
Панорама
История цены
Похожие списком

КрасноярскКировскийул. Аральская

Без комиссий агентства. Продам светлую и просторную студию, без мебели, ремонт от застройщика, заехал и живи. Квартира в ипотеки, юридически все правильно оформим, прописанных никого нет ...
4 250 000 
129 тыс. ₽/м²
Вчера

КрасноярскКировскийул. Апрельская

Риелторские агентства прошу не беспокоить. Квартира на комфортном 6-м этаже. Дом 2018 года постройки (ЖК Мичурино), уже устоялся, ремонты у соседей завершены. В квартире выполнен свежий ...
4 400 000 
153 тыс. ₽/м²
Вчера

КрасноярскКировскийул. Автомобилистов

Только наличный расчёт. Продам комнату, в семейном чистом общежитии. На этаже несколько душевых и туалетных комнат, возможность провести воду, коммуникации рядом. Хорошие соседи, удобное ...
750 000 
61 тыс. ₽/м²
Позавчера

КрасноярскКировскийул. Апрельская

Классическая планировка однокомнатной квартиры, закрытый двор с консьержем, прям за забором строиться школа. В шаговой доступности большое количество различных магазинов. Соседей сверху ...
5 600 000 
144 тыс. ₽/м²
28 апреля

КрасноярскКировскийул. Апрельская

Классическая планировка однокомнатной квартиры, кирпичный дом, закрытый двор с консьержем, прям за забором строиться школа. В шаговой доступности большое количество различных магазинов ...
5 600 000 
144 тыс. ₽/м²
25 апреля

КрасноярскЧеремушки

Квартира уютная, светлая. После косметического ремонта. Площадь кухни - 9 кв. м. Собственник. Подробности по телефону. ...
4 070 000 
100 тыс. ₽/м²
23 апреля

Открыть полный доступ

Введите ваш код доступа к категории «Продажа 1-комнатных квартир»

Нет кода?

Вы можете открыть полный доступ к контактам собственников в объявлениях, фотографиям, истории стоимости объектов недвижимости используя код доступа ... подробнее

Средняя стоимость м², квартиры, Красноярск, Кировский

1-ком. квартиры, Кировский

136 790 ₽/м²

%
1,47%

Среднее по Красноярску

149 540 ₽/м²

%
0,32%

По данным статистики стоимости недвижимости системы НЕАГЕНТ на 01.05.2026

Оповещения в телеграм

tg Подключите бесплатные оповещения о новых объявлениях в системе, а также управляйте своими объявлениями, если вы собственник — @neagentbot

Следуюший совет