Продажа дома, ул. Варна, собственник

240 м²

общая

3

этажа

Кирпичный

Тип дома

Описание

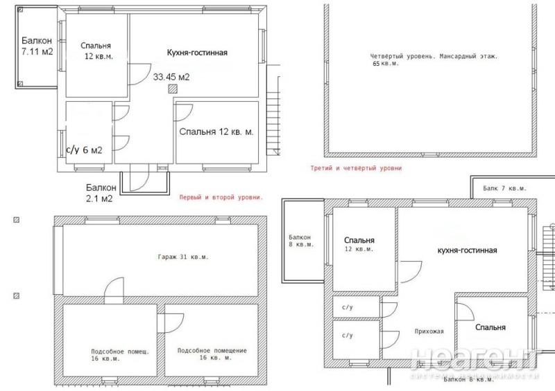
Коттедж 196,6 кв. м. по документам три этажа и мансарда без отделки около 60 кв. м. Можно использовать на две семьи. Четыре балкона по 8 кв. м. Толщина стен 48 см. Участок угловой 3.15 сот, откатные ворота с двух сторон. Свет, горячая и холодная вода, канализация, газ, автономное отопление. Есть гараж без отделки, есть помещение под сауну. Мансарда без отделки - окна на четыре стороны, можно сделать отдельный вход и получится четыре независимых жилых уровня для проживания или сдачи в аренду. Состояние жилое. Две кухни, три санузла. Радиаторы-стальные Германия, окна МП. До пляжа, открытое море, Мысхако, на 32 маршрутке 2 остановки. Во дворе растёт чёрный и белый виноград, черешня, смородина, абрикос, чернослив, хурма, инжир, яблоня. Возможен обмен. Контактное лицо: Владимир
22 000 000 ₽
91 667 ₽/м²

возможен обмен

19 апреля
Телефон собственника

+7 91*-***-****

Поделиться
Избранное
На карте
Панорама
История цены
Похожие списком

Новороссийскс. Мысхако

Продаю дом площадью 100 кв. м на участке 4 сотки. В связи со встречным преобритением снижена цена на ограничение количество времени. Дом оформлен, поставлен на кадастр. Подходит под ипотеку ...
12 500 000 
125 тыс. ₽/м²
Вчера

НовороссийскЮжный

Продаю дом площадью 369,3 кв. м на участке 6 соток. Дома. Продается фундаментальный особняк 369.3 м в Мысхако с баней и полной автономией на участке 600 кв. м - это Территория ясности и ...
40 100 000 
109 тыс. ₽/м²
25 апреля

Новороссийскс. Мысхако

Продаю дом площадью 200 кв. м на участке 4,3 сотки. Не особо ценные. Подробнее по телефону.  ...
19 800 000 
99 тыс. ₽/м²
20 ноября 2025

Открыть полный доступ

Введите ваш код доступа к категории «Продажа домов»

Нет кода?

Вы можете открыть полный доступ к контактам собственников в объявлениях, фотографиям, истории стоимости объектов недвижимости используя код доступа ... подробнее

Средняя стоимость м², дома, Новороссийск, Южный

Дома, дачи, Южный

120 320 ₽/м²

%
3,51%

Среднее по Новороссийску

111 310 ₽/м²

%
0,6%

По данным статистики стоимости недвижимости системы НЕАГЕНТ на 01.05.2026

Агентствам недвижимости

Если вы представляете агентство недвижимости или являетесь частным риэлтором, то вы можете использовать специальные тарифы на подключение к базе прямых предложений от собственников по продаже и аренде подробнее недвижимости, которые вы можете применять в работе со своими клиентами, предлагая им больший выбор вариантов квартир, домов, участков и коммерческих помещений. После регистрации вы получите демо-доступ в личный кабинет - профессиональный инструмент для работы риэлтора.

Следуюший совет