Продам 1-комн. квартиру, ЖК Легендарный северный, ул. Аэропорт

1-комн.

квартира

48 м²

общая

8 из 14

этаж

Мон. кирп.

Тип дома

Описание

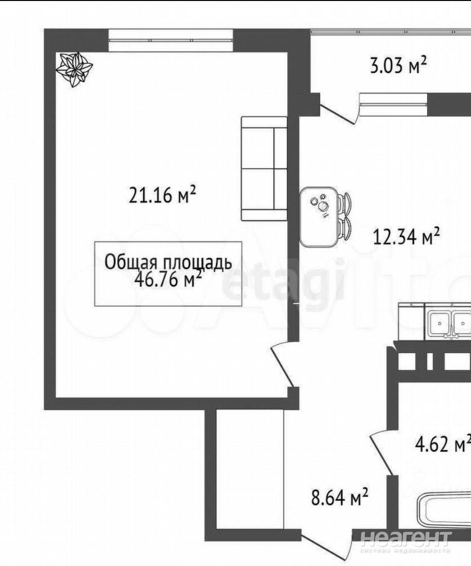
Продаю 1-комнатную квартиру площадью 48 кв. м на 8 этаже 14 этажного дома. Квартира под чистовую самоотделку. Высота потолков 2,85 м, ЖК Легендарный Северный, подробное описание на сайте застройщика, дом одно-подъездный, в подъезде консьерж, подземная парковка, большая детская площадка, 5 минут до пл. Калинина, продажа от собственника, документы готовы, без обременений квартира покупалась за наличные, один собственник, ключи на руках, торг.

Метро

Заельцовская~ 39 мин Гагаринская~ 54 мин
7 100 000 ₽
147 917 ₽/м²
20 января
Контакт собственника

+7 9**-***-****

Поделиться
Избранное
На карте
Панорама
История цены
Похожие списком

НовосибирскЗаельцовскийул. Аэропорт

Продаётся уютная солнечная квартира в новом кирпичом доме от надёжного застройщика смсс. Средний этаж, западная сторона светлая квартира с прекрасным видом в сторону Зоопарка. Удобная планировка ...
5 450 000 
218 тыс. ₽/м²
Вчера

НовосибирскЗаельцовскийул. Весенняя

Неспешно продам свое логово. До пл. Калинина 12-15 минут, до metro 5-7 минут. Дом 1968 года постройки, кирпичный. Ближайшая зеленая зона -зоопарк или дендропарк. С парковкой проблем нет ...
4 200 000 
141 тыс. ₽/м²
Вчера

НовосибирскЗаельцовскийул. Красногорская

В продаже видовая квартира-студия в ЖК Ньютон. Предчистовая отделка - фотография представлена для визуализации. Интересный вариант как для будущего проживания, так и для инвестиции. Цена ...
4 399 000 
174 тыс. ₽/м²
9 апреля

НовосибирскЗаельцовскийпроспект Красный

ЖК Лев Толстой жилой комплекс бизнес-класса. В продаже однокомнатная квартира в кирпичном доме, в 13 минутах ходьбы от метро Заельцовская. Красивый вид из окна на город. Квартира в предчистовой ...
8 700 000 
235 тыс. ₽/м²
7 апреля

НовосибирскЗаельцовскийпроспект Красный

Квартира в красивом месте Новосибирска. ЖК 'Новаторы'' расположены на главной улице города на подъёме Красного проспекта в Заельцовском районе, в створе улиц Аэропорт и Георгия ...
5 700 000 
268 тыс. ₽/м²
9 декабря 2025

НовосибирскЗаельцовскийул. Аэропорт

Продам 1-ю студию в новом доме ЖК Нормандия-Неман, в трех остановках от станции метро Заельцовская. Придомовая територрия имеет детскую площадку. Подземный и наземный паркинг. В квартире ...
4 300 000 
187 тыс. ₽/м²
19 ноября 2025

Открыть полный доступ

Введите ваш код доступа к категории «Продажа 1-комнатных квартир»

Нет кода?

Вы можете открыть полный доступ к контактам собственников в объявлениях, фотографиям, истории стоимости объектов недвижимости используя код доступа ... подробнее

Средняя цена м², квартиры, Новосибирск, Заельцовский

1-ком. квартиры, Заельцовский

176 050 ₽/м²

%
0,44%

Среднее по Новосибирску

155 830 ₽/м²

%
0,09%

По данным статистики стоимости недвижимости системы НЕАГЕНТ на 22.04.2026

Скидки

Вы можете получить скидку на покупку нового кода доступа в размере от 10 до 40% используя старый код доступа как «скидочный». Если вам больше не нужен код, то подарите его друзьям. Узнайте больше о получении скидки на новый код доступа в нашем блоге

Следуюший совет