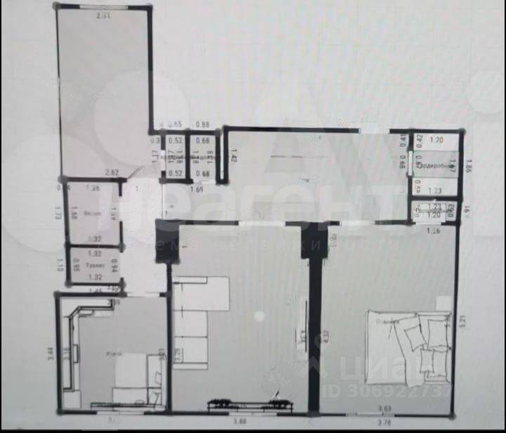
Продам 3-х ком. квартиру, ул. Весенняя, лично
3-комн.
квартира
89,7 м²
общая
2 из 3
этаж
Кирпичный
Тип дома
Описание
Продам 3-х комнатную квартиру площадью 89,7 кв. м на 2 этаже 3 этажного кирпичного дома. Собственник. Агентствам не беспокоить.В связи с переездом продаётся просторная полногабаритная 3-х комнатная квартира с удачной планировкой, площадью 89 кв. м, в кирпичном доме с высотой потолков 3,2 м.
Весной прошлого года была произведена капитальная замена кровли и отреставрирован фасад здания.
- Квартира тёплая, светлая, окна выходят на обе стороны. Огромный холл, есть отдельная гардеробная и кладовая. Просторная кухня - 14 кв. м. Все комнаты изолированные. В ванной и туалетной комнатах сделан свежий ремонт, кафельная плитка на полу и стенах, установлены качественные двери. Везде установлены пластиковые окна. Квартира расположена на среднем этаже. На площадке 4 квартиры. У стен хорошая шумоизоляция, что создаётся ощущение отсутствия соседей совсем.
- Дом надёжной кирпичной кладки, удачно расположен на районе в тихом месте, среди малонаселённых домов. Много парковочных мест во дворе.
Чистая продажа, быстрый выход на сделку. Звоните и пишите в удобное Вам время.
Доп. описание: санузел раздельный, пластиковые окна, в доме есть: открытый двор, наземный паркинг, косметический ремонт, продается без мебели. Также имеются: интернет, кабельное телевидение, счетчики холодной и горячей воды, домофон, железная дверь. Посредникам просьба не беспокоить. Контактное лицо: Василий










