Продам 4-х комн. квартиру (ул. Серебренниковская), не агентство

4+ комн

квартира

150 м²

общая

1 из 6

этаж

Кирпичный

Тип дома

Описание

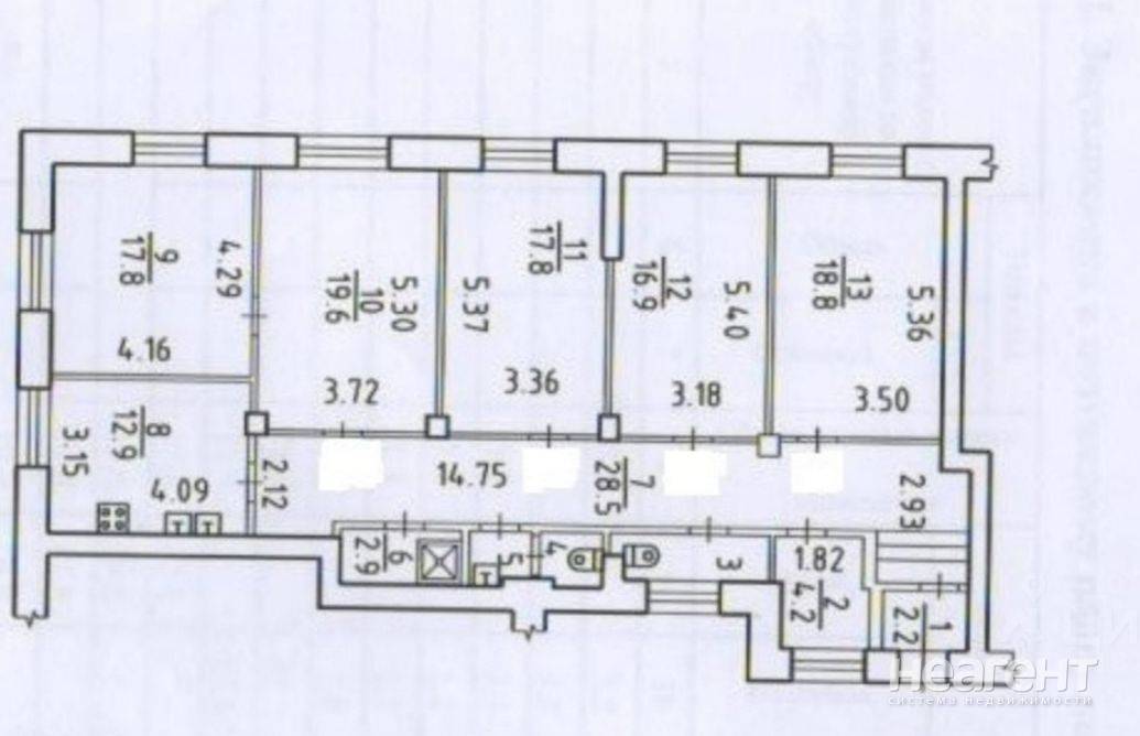
Продаю 4-х комнатную квартиру площадью 150 кв. м на 1 этаже 6 этажного кирпичного дома. Огромное помещение с отдельным выходом во двор не через подъезд. Перекрытия именно в этом помещении ЖБ. Полностью под ремонт. Можно использовать под разные виды бизнеса. Высота потолка 3.7 метра. Несущих стен нет только колонны. Обмен на авто, недвижимость с вашей доплатой.

О доме

Дом построен в 1932 г. Подъезды: 6 шт.

Метро

Октябрьская~ 12 мин Речной вокзал~ 19 мин Площадь Ленина~ 22 мин

Инфраструктура

14 000 000 ₽
93 333 ₽/м²

возможен обмен

24 апреля
Контакт собственника

+7 9**-***-****

Поделиться
Избранное
На карте
Панорама
История цены
Похожие списком

НовосибирскОктябрьскийул. Военная

Продажа новой квартиры. Квартира в состоянии ''от застройщика'' с органичной планировкой. В квартире чисто и сухо, никаких недостатков. За всё время один собственник, без обременений и ...
19 200 000 
155 тыс. ₽/м²
23 апреля

НовосибирскЦентральныйпроспект Красный

Жить в самом сердце Новосибирска это когда главный проспект города у тебя под окнами. Красный проспект. Дом с часами, шестой этаж с большим балконом и прямым видом на центр: свет, огни ...
9 100 000 
128 тыс. ₽/м²
16 апреля
1

НовосибирскЦентральныйпроспект Красный

Две объединенных квартиры в центре города - все узаконено. Можно использовать как под жилье - так и под коммерцию, в данный момент использую под офис. Два входа, возможность выхода на красный ...
18 500 000 
173 тыс. ₽/м²
4 апреля

НовосибирскОктябрьскийул. Военная

Новая квартира и два смежных места на подземном паркинге 6 х6 м. Один собственник за всё время. Нет ипотек (куплено за налмчные), ограничений, обременений и пр. Полная стоимость в договоре ...
21 500 000 
174 тыс. ₽/м²
22 февраля

Открыть полный доступ

Введите ваш код доступа к категории «Продажа 4-х и более комнатных квартир»

Нет кода?

Вы можете открыть полный доступ к контактам собственников в объявлениях, фотографиям, истории стоимости объектов недвижимости используя код доступа ... подробнее

Стоимость 1 м², квартиры, Новосибирск, Центральный

4-х и более ком., Центральный

136 490 ₽/м²

%
5,38%

Среднее по Новосибирску

129 030 ₽/м²

%
0,27%

По данным статистики стоимости недвижимости системы НЕАГЕНТ на 04.05.2026

Застройщикам

Если вы представляете официальный отдел продаж строительной компании, то вы можете размещать свои объявления с открытыми номером телефона.

Следуюший совет