Продам 4-х комн. квартиру, ул. Софийская

4+ комн

квартира

123,1 м²

общая

7 из 10

этаж

Кирпичный

Тип дома

Описание

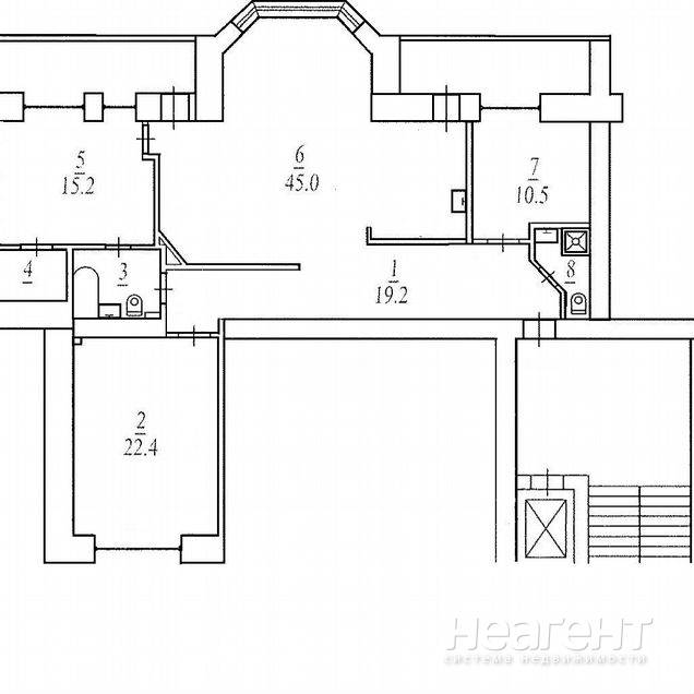
Продаю 4-х комнатную квартиру площадью 123,1 кв. м на 7 этаже 10 этажного кирпичного дома. Продается 4-x комнатная квартира (три изолированные комнаты и кухня-гостиная) общей площадью 125,4 кв. м на 7-м этаже 10-ти этажного кирпичного дома по ул. Софийская. Высота потолков 2,9 м. в спальной комнате гардеробная комната. Для удобства хозяев и гостей предусмотрены два санузла с ванной и душевой кабиной. Две просторные утепленные лоджии по 8,0 кв. м. Окна квартиры выходят на 2 стороны дома. Проведена охранная сигнализация. Единственные собственники по ДДУ, дом сдан в эксплуатацию в 2006 году. в подъезде большой грузопассажирский лифт. Дом с закрытой территорией, системой видеонаблюдения. Перед домом большая парковка для автомобилей. На территории оборудована детская площадка. В доме свое ТСЖ, оперативно решающее возникающие проблемы. В пешей доступности школа, поликлиника, три детских садика, магазины, остановка общественного транспорта. Обское водохранилище (видно из окна) с красивой набережной для прогулок, парк культуры и отдыха, пляж, церковь (при открытом окне слышен звон колоколов). Рядом с домом небольшое озеро.

О доме

Дом построен в 2006 г. Лифты: есть Подъезды: 3 шт.

Инфраструктура

Детский сад №280 ~ 4 мин Горожанка ~ 6 мин Школа №112 ~ 7 мин подробнее
15 000 000 ₽
121 852 ₽/м²
24 апреля
Контакт собственника
Поделиться
Избранное
На карте
Панорама
История цены
Похожие списком

НовосибирскСоветскийул. Энгельса

Просторная, светлая квартира, в живописном районе города. Всё в шаговой доступности - школа, детсад, магазины, аптеки, поликлиники, рынок, ДК Приморский. Обское море, парк для отдыха. Дом ...
4 100 000 
66 тыс. ₽/м²
Сегодня

Открыть полный доступ

Введите ваш код доступа к категории «Продажа 4-х и более комнатных квартир»

Нет кода?

Вы можете открыть полный доступ к контактам собственников в объявлениях, фотографиям, истории стоимости объектов недвижимости используя код доступа ... подробнее

Стоимость 1 м², квартиры, Новосибирск, Советский

4-х и более ком., Советский

144 120 ₽/м²

%
2,97%

Среднее по Новосибирску

127 970 ₽/м²

%
1,1%

По данным статистики стоимости недвижимости системы НЕАГЕНТ на 13.05.2026

Утром ключи - вечером деньги

При аренде квартиры не следует переводить/передавать оплату вперед, то есть до получения и изучения всех необходимых документов. С владельцем квартиры рассчитываться только после того, как квартира будет тщательно осмотрена и все моменты будут зафиксированы в договоре и подписаны собственником, во избежание споров в дальнейшем

Следуюший совет