Продажа дома, ул. Лучезарная

162,6 м²

общая

2

этажа

Блочный

Тип дома

Описание

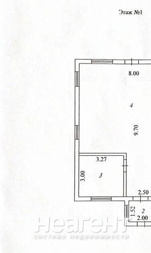
Продаю дом площадью 162,6 кв. м из газобетонного блока. Недостроенный дом. Первый этаж выполнен из газоблоков, толщиной 300 мм, имеются окна, по плану два входа (фасадная дверь и выход на задний двор). Второй этаж каркасный, без утепления, окон нет. Фундамент ленточный. Выполнена изоляция перекрытия между первым и вторым этажами. На участке не слышно шума проспекта Дзержинского, потому что кроны деревьев Сада Дзержинского отделяют от дороги. Ощущение, что находишься загородом. На первом этаже по плану большая кухня-гостиная, одна спальня и ванная комната с постирочной. На втором этаже по плану мастер-спальня и три детские комнаты. Имеется хороший забор с трех сторон из евроштакетника. Коммуникации: вода заведена в дом, без разводки; канализация проложена в полу, выведена из дома, сливной ямы нет; электричество заведено в дом, без разводки; проект на газоснабжение выполнен и оплачен, газовая труба проходит вдоль участка. Проделана большая работа с документами, границы участка определены, адрес зарегистрирован. Дом в обременении (ипотека на 2 000 000 руб в Сбербанке). Участок был куплен в 2021, был приведен в порядок, убирали старый фундамент, деревья, завозили новую землю. Дом строили с 2022-2024, в 2025 залили пол стяжкой на первом этаже. Инфраструктура: участок с домом находится в 5 минутах от остановки «Сад Дзержинского». Рядом непосредственно Сад Дзержинского, государственная и частная школы, детский сад, поликлиника, достраиваются большой футбольный манеж и храм во имя Макария Алтайского, через дорогу находятся две библиотеки и центр детского доп образования «Галактика». Идеальное местоположение, в черте города, красивый исторический проспект Дзержинского, фасады которого отреставрированы и процесс реставрации еще идет. Дом подходит для семьи или для коммерции. Приходите на просмотр.

Метро

Золотая Нива~ 45 мин Березовая роща~ 53 мин
10 000 000 ₽
61 501 ₽/м²
4 ноября 2025
Контакт собственника

+7 9**-***-****

Поделиться
Избранное
На карте
Панорама
История цены
Похожие списком

НовосибирскДзержинскийул. Айвазовского

Продается благоустроенный дом из бруса 160*160. В доме 3 спальни, большая гостиная, кухня, туалет с ванной совмещенные, кладовка, техническая комната, где находятся газовый и электрический ...
8 000 000 
83 тыс. ₽/м²
26 апреля

НовосибирскДзержинский

Продаю кирпичный дом площадью 113,9 кв. м. Уютный, тёплый дом для семьи с детьми в тихом и безопасном месте по ул. Васнецова. Ищете готовый к заселению дом, где не нужно ничего доделывать ...
9 500 000 
83 тыс. ₽/м²
24 апреля

НовосибирскДзержинский

Продаю деревянный дом площадью 116 кв. м. Цена до мая. Возможен разумный торг. Для АН: у нас есть свой риелтор. Этот вариант может понравиться тем, кто хочет жить в тихом месте, но в то ...
5 800 000 
50 тыс. ₽/м²
20 апреля

НовосибирскДзержинскийул. Лучезарная

Продам 2 х этажный дом площадью 133,4 кв. м на участке 4,5 сотки. Дом на ленточном фундаменте, брус 150*150 утеплён эковером, сайдинг дёке сделан в 2024 году. Септик переливной. Городской ...
14 300 000 
107 тыс. ₽/м²
31 марта

НовосибирскДзержинскийул. Васнецова

Продаю дом площадью 113 кв. м на участке 6 соток. Уютный, тёплый дом для семьи с детьми в тихом и безопасном месте по ул. Васнецова. Ищете готовый к заселению дом, где не нужно ничего доделывать ...
9 500 000 
84 тыс. ₽/м²
27 марта
нет фото

НовосибирскДзержинский

Продаю дом площадью 43 кв. м на участке 7 соток. Окна пластиковые, линолеум, потолочная плитка, все посадки. Половина дома.  ...
3 000 000 
70 тыс. ₽/м²
8 декабря 2025

Открыть полный доступ

Введите ваш код доступа к категории «Продажа домов»

Нет кода?

Вы можете открыть полный доступ к контактам собственников в объявлениях, фотографиям, истории стоимости объектов недвижимости используя код доступа ... подробнее

Стоимость 1 м², дома, Новосибирск, Дзержинский

Дома, дачи, Дзержинский

92 420 ₽/м²

%
3,64%

Среднее по Новосибирску

84 230 ₽/м²

%
0,41%

По данным статистики стоимости недвижимости системы НЕАГЕНТ на 01.05.2026

Как снять квартиру

Объявления в разделе аренды теряют свою актуальность очень быстро, чем скорее вы позвоните собственнику, после появления объявления на сайте, тем больше шансов совершить удачную сделку. При звонке необходимо договориться о просмотре квартиры, желательно взять с собой задаток и договор найма (см. следующий совет)

Следуюший совет