Продам 3-к квартиру, г. Батайск, ул. Крупской

3-комн.

квартира

98 м²

общая

13 из 16

этаж

Монолитный

Тип дома

Описание

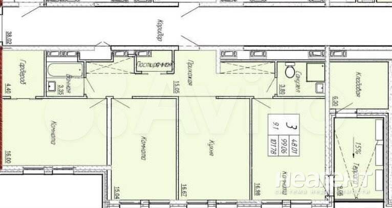
Продаю 3-х комнатную квартиру площадью 98 кв. м на 13 этаже 16 этажного монолитного дома. Квартира в центре Батайска с видом на город. Два санузла, постирочная. Поквартирные счетчики на электричество, воду, отопление. Закрытая придомовая территория, видеонаблюдение, консьерж. Стройвариант, без отделки. О жилом комплексе Невский Шестнадцатиэтажное здание с 1 по 4 этажи включает двухуровневый паркинг, колясочные, террасу общего пользования с детской и спортивной площадками, зонами отдыха. В наличии два лифта грузовой и пассажирский которые соединяют паркинг и колясочные с жилыми этажами. Жилая зона располагается с 5 по 16 этаж. Удобная локация центральной части города Батайска: рядом развитая инфраструктура, парк им. Ленина, транспортная развязка, ЖД. Торг уместен.
9 000 000 ₽
91 837 ₽/м²
Сегодня13 мая
Контакт собственника
Поделиться
Избранное
На карте
История цены
Похожие списком

Ростов-на-Донуг. Батайск

В центре Батайска. Закрытый двор, своя парковка, зона для барбекю, хороший ремонт, мебель частично остается, 3 сплит-системы, два сан узла, кладовая. Теплые полы во всем доме, индивидуальное ...
9 290 000 
109 тыс. ₽/м²
Сегодня

Ростов-на-Донуг. Батайскул. Энгельса

Собственник. Требуется ремонт. Новые пластиковые окна. Перепланировка узаконена. Два балкона и лоджия. Два балкона выходят во двор, лоджия на ул. Энгельса. Подробно по телефону или при ...
5 000 000 
83 тыс. ₽/м²
9 мая

Ростов-на-Донуг. Батайскул. Заводская

Собственник. Центр батайска. Квартира с дизайнерский ремонтом. К квартире прилагается подвал 10 кв. м. Индивидуальное отопление. Установлена сигнализация. Кухные фасады, двери межкомнатные ...
13 550 000 
130 тыс. ₽/м²
23 апреля

Ростов-на-Донуг. Батайск

Продам 3-х комнатную квартиру площадью 72 кв. м на длительный срок. Северный массив, напротив тц Оранжерея. 10 минут до центра 5 минут до парка Левобережный. Детский сад под домом, школа ...
6 800 000 
94 тыс. ₽/м²
20 февраля

Открыть полный доступ

Введите ваш код доступа к категории «Продажа 3-х комнатных квартир»

Нет кода?

Вы можете открыть полный доступ к контактам собственников в объявлениях, фотографиям, истории стоимости объектов недвижимости используя код доступа ... подробнее

Цена за 1 м², квартиры, в Ростове-на-Дону, г. Батайск

3-х ком. квартиры, г. Батайск

101 260 ₽/м²

%
5,42%

Среднее по Ростову-на-Дону

135 540 ₽/м²

%
0,38%

По данным статистики стоимости недвижимости системы НЕАГЕНТ на 13.05.2026