Продаю 3-комн. квартиру, ул. Уланская

3-комн.

квартира

77 м²

общая

11 из 19

этаж

Кирпичный

Тип дома

Описание

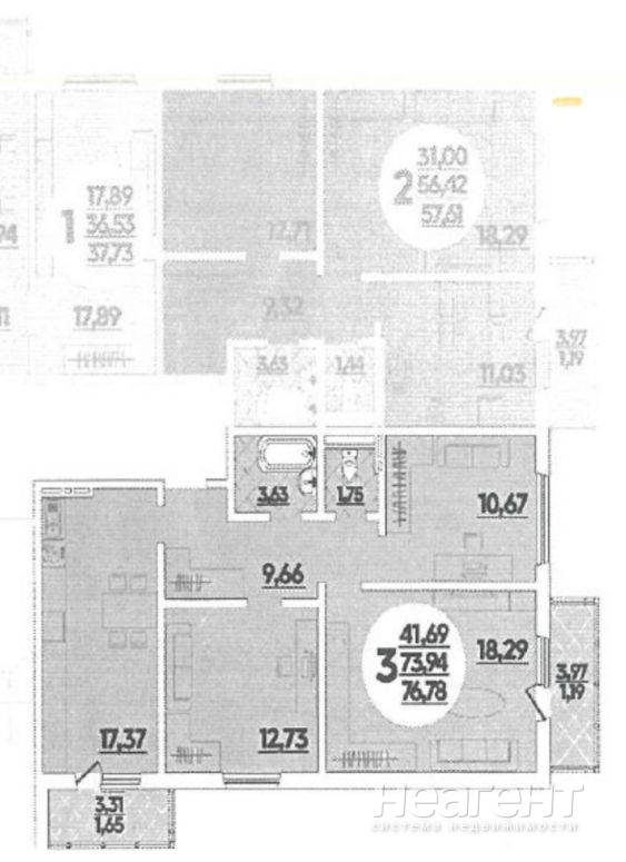
Продаю 3-х комнатную квартиру площадью 77 кв. м на 11 этаже 19 этажного кирпичного дома. Квартира в современном жилом комплексе на Уланской улице. Общая площадь квартиры составляет 77 кв. м, из которых 42 кв. м жилая площадь и 17 кв. м кухня. Квартира расположена на 11 этаже 19-этажного монолитного дома, построенного в 2021 году. Из окон открывается вид как на улицу, так и во двор. Квартира без ремонта, что дает уникальную возможность обустроить интерьер по своему вкусу и потребностям. Планировка включает в себя три просторные комнаты и кухню, где можно воплотить любые дизайнерские идеи. в квартире один отдельный санузел и два балкона, которые могут стать отличным местом для отдыха. Дом в отличном состоянии, оснащен двумя лифтами: пассажирским и грузовым, поэтому можно легко перемещаться даже с крупным багажом. Для автомобилей предусмотрена наземная парковка, что решает вопрос с местом для вашей машины. Район обустроен всей необходимой инфраструктурой для комфортной жизни. В шаговой доступности находятся школы и детские сады, что удобно для семей с детьми. Также рядом расположены магазины, где можно приобрести всё необходимое. Продажа осуществляется от собственника, что упрощает процесс сделки. Квартира в ипотеке Приглашаем вас на просмотр этой замечательной квартиры. Звоните и записывайтесь на удобное для вас время.

О доме

Дом построен в 2021 г. Лифты: есть Подъезды: 1 шт.
7 300 000 ₽
94 805 ₽/м²
12 апреля
Контакт собственника

+7 9**-***-****

Поделиться
Избранное
На карте
Панорама
История цены
Похожие списком

Ростов-на-ДонуСуворовскийул. Петренко

Продается уникальная 3-комнатная квартира от собственника Адрес: ул. Петренко, дом 20 Общая площадь: 80 кв. м. Почему эта квартира особенная Просторные комнаты с уникальным дизайном: Прихожая: ...
7 450 000 
95 тыс. ₽/м²
Сегодня

Ростов-на-ДонуСуворовскийул. Платона Кляты

Трехкомнатная квартира в монолитно-кирпичном доме. Площадь без учета лоджий 89,2 кв. м с лоджиями 100 кв. м. Состояние - требуется переклеить обои, 1-собственник, свободная продажа. Риэлторов ...
9 300 000 
104 тыс. ₽/м²
23 апреля

Ростов-на-ДонуСуворовскийул. Платона Кляты

Собственник. Срочная продажа. Прошу агентства не беспокоить. Квартира с изолированными комнатами в панельном доме, построенном в 2016 году. Из окон открывается вид на тихий двор, где расположена ...
6 200 000 
86 тыс. ₽/м²
22 апреля

Ростов-на-ДонуСуворовскийбульвар Измайловский

Срочная продажа от собственника. Риелторам звонить и писать только. При наличии реальных покупателей. Эксклюзивы не заключаю. Просто посмотреть и пофотографировать не разрешаю. Квартира ...
7 300 000 
97 тыс. ₽/м²
21 апреля

Ростов-на-ДонуСуворовскийул. Драгунская

которая готова стать уютным семейным гнездышком для новой семьи. Почему стоит выбрать.- на этажах только по 3 квартиры (минимум соседей, все семейные, два лифта всегда доступны, в тамбуре-простор ...
7 500 000 
96 тыс. ₽/м²
10 апреля

Ростов-на-ДонуСуворовскийул. Платона Кляты

С просторной кухней, раздельными комнатами, 2 лоджиями, раздельный санузел (имеется бойлер Electrolux), гардеробная. В квартире останется встроенная кухня «Мария», варочная панель, духовой ...
9 500 000 
90 тыс. ₽/м²
5 апреля

Открыть полный доступ

Введите ваш код доступа к категории «Продажа 3-х комнатных квартир»

Нет кода?

Вы можете открыть полный доступ к контактам собственников в объявлениях, фотографиям, истории стоимости объектов недвижимости используя код доступа ... подробнее

Средняя стоимость м², квартиры, Ростов-на-Дону, Суворовский

3-х ком. квартиры, Суворовский

91 720 ₽/м²

%
0,68%

Среднее по Ростову-на-Дону

135 020 ₽/м²

%
2,47%

По данным статистики стоимости недвижимости системы НЕАГЕНТ на 30.04.2026