Продажа 3-к квартиры, Александровка, проспект 40-летия Победы

3-комн.

квартира

72 м²

общая

4 из 5

этаж

Кирпичный

Тип дома

Описание

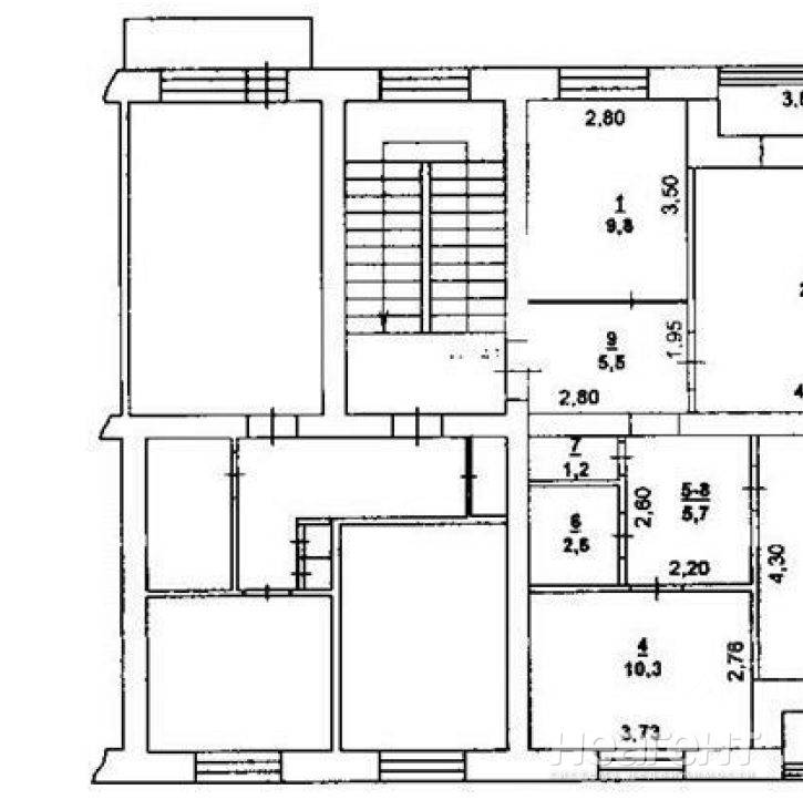
Продаю 3-х комнатную квартиру площадью 72 кв. м на 4 этаже 5 этажного кирпичного дома. Жилая площадь 53.4 кв. м, кухня 9.8 кв. м. Квартира находится на 4 этаже 6-этажного кирпичного дома, построенного в 1983 году. На этаже всего две квартиры. Соседи по площадке - отзывчивая неконфликтная взрослая семейная пара. Квартира не угловая. Высота потолков 2.7 метра, что добавляет ощущения пространства. Окна выходят во двор, на противоположные стороны дома, поэтому в квартире всегда тихо и спокойно. Вид - на двор и деревья. Квартира без ремонта, что дает вам возможность создать идеальное пространство по своему вкусу. Пол - паркет. В квартире есть отдельный санузел, что удобно для большой семьи. Две лоджии позволяют наслаждаться свежим воздухом и создавать уютные зоны для отдыха. Дом находится в хорошем состоянии, ухоженный и чистый подъезд. Для вашего удобства предусмотрена наземная парковка, поэтому всегда можно найти место для автомобиля. Рядом с домом находятся школы (обычная и спортивная) и детские сады. В шаговой доступности множество магазинов, где можно купить все необходимое. Прекрасная транспортная доступность: рядом остановки общественного транспорта (пешком за 5 минут), поэтому до центра города можно добраться быстро и без проблем. Квартира без обременений, готова к продаже. В квартире никто не зарегистрирован. Возможна ипотека. Идеальный вариант для тех, кто хочет создать уютное жилье для своей семьи.

О доме

Дом построен в 1983 г. Подъезды: 10 шт.

Инфраструктура

6 400 000 ₽
88 889 ₽/м²
28 апреля
Контакт собственника
Поделиться
Избранное
На карте
Панорама
История цены
Похожие списком

Ростов-на-ДонуАлександровкапроспект 40-летия Победы

В 1 минуте - новая начальная школа. 2 мин - шикарный продовольственный рынок 1 мин. Спорт. Школа Самургашевых 2-3 мин. Магнит Рядом 2. Школы, д. сад, муз. Школа, спортивная школа. 3-5 минут ...
5 350 000 
86 тыс. ₽/м²
Вчера

Ростов-на-ДонуАлександровкапроспект 40-летия Победы

Объявление от собственника. Продаю 3-x комнатную угловую квартиру. С ремонтом. С мебелью. С техникой. Один взрослый собственник. Без обременений. Никто не прописан. Подходит по ипотеку ...
5 450 000 
107 тыс. ₽/м²
Позавчера

Ростов-на-ДонуАлександровкапроспект 40-летия Победы

Риелторам не беспокоить. Только прямая продажа. Частник, никаких обременений.  ...
5 600 000 
96 тыс. ₽/м²
26 апреля

Ростов-на-ДонуПервомайскийул. Берберовская

Квартира в ЖК «Полет» от собственника. Эксклюзив не заключаю. Обременение - сбер банк. Документы к продаже оформить возможно без больших комиссий от агенств. Для агентов: просмотры только ...
11 300 000 
130 тыс. ₽/м²
24 апреля

Ростов-на-ДонуПролетарскийул. Берберовская

Квартира в новом, стремительно развивающемся районе Старого аэропорта в Ростове-на-Дону. Это идеальное жилье для большой семьи, которая ценит современный ремонт и продуманную инфраструктуру ...
15 500 000 
187 тыс. ₽/м²
22 апреля

Ростов-на-ДонуАлександровкаул. Берберовская

Евро 3 x комнатная квартира в ЖК Вересаево 11 этаж. 2 лифта (грузовой и пассажирский). Первый дом с улицы Берберовская. Быстро заехали и быстро выехали из ЖК. Охраняемая территория и стоянка ...
10 500 000 
195 тыс. ₽/м²
19 апреля

Открыть полный доступ

Введите ваш код доступа к категории «Продажа 3-х комнатных квартир»

Нет кода?

Вы можете открыть полный доступ к контактам собственников в объявлениях, фотографиям, истории стоимости объектов недвижимости используя код доступа ... подробнее

Средняя стоимость м², квартиры, Ростов-на-Дону, Александровка

3-х ком. квартиры, Александровка

122 130 ₽/м²

%
1,43%

Среднее по Ростову-на-Дону

134 480 ₽/м²

%
0,4%

По данным статистики стоимости недвижимости системы НЕАГЕНТ на 01.05.2026