Сдаю помещение, ул. Вавилова

134,3 м²

общая

1

этаж

Описание

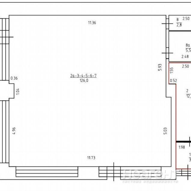
Сдаю в аренду помещение площадью 134,3 кв. м на 1 этаже дома. Помещение светлое, с удобной планировкой. Возможна долгосрочная аренда с регистрацией в Росреестре. Регистрация юридического адреса включена в стоимость. Огромный автомобильный трафик. В 20 метрах ресторан быстрого питания Вкусно - и точка. На 1-м этаже здания столовая За100 лье. Наличие бесплатной парковки на 20 мест. Наличие платной, охраняемой парковки на 30 мест. Стоимость + очень низкие к/у (примерно 75-80 р./кв. м.). Все платежи официально (только перечислением на р/сч). Собственник.

Инфраструктура

115 000 ₽

в месяц

856 ₽/м²
31 марта
Контакт собственника
Поделиться
Избранное
На карте
Панорама
История цены
Похожие списком

Ростов-на-ДонуКаменкаул. Тарновского-Терлецкого

Сдам помещения в здании, находящемся по адресу: улица Тарновского-Терлецкого 97 а. Площадь от 25 кв. м -32 кв. м. Цена от 40-55 т. р. Есть помещение на 2 этаже. В здании уже есть арендатор ...
35 000 
1667 ₽/м²
Сегодня

Ростов-на-ДонуКаменкаул. Вавилова

Помещение находится на оживленной транспортной артерии города, первый этаж и подвал, есть место для разгрузки, 2 входа с улицы и один со двора, 2 сан узла, оборудовано сплит-системами, ...
100 000 
364 ₽/м²
18 апреля
1

Ростов-на-ДонуОктябрьскийпереулок Радиаторный

Срочное предложение С 1 апреля освобождается. Теплое складское помещение 450 кв. м. Также доступно для аренды: соседнее офисное помещение 40 кв. м. Холодное складское помещение 60 кв. м ...
260 000 
578 ₽/м²
18 апреля

Ростов-на-ДонуОктябрьскийпроспект Королева

Сдается бокс капитальный с оборудованием.- находится на первой линии;.- большой трафик;.- бокс на две машины;.- подходит для малого коммерческого транспорта;.- два подъемника (2-х и 4-x ...
106 000 
1042 ₽/м²
18 апреля

Ростов-на-ДонуОктябрьскийпроспект Королева

Сдаётся в аренду складское помещение (холодный склад) от собственника. Описание: Складские площади организованы на базе морских контейнеров. 20 футовый контейнер: 15 кв. м 40 футовый контейнер: ...
8000 
267 ₽/м²
17 апреля

Ростов-на-ДонуКаменкаул. Тарновского-Терлецкого

Помещение на втором этаже в здании с Магнитом и др. арендаторами. Возможно использование под др. виды деятельности офисы или арендовать часть здания. Есть помещения на 1 этаже.  ...
279 600 
699 ₽/м²
12 апреля

Открыть полный доступ

Введите ваш код доступа к категории «Аренда нежилых помещений»

Нет кода?

Вы можете открыть полный доступ к контактам собственников в объявлениях, фотографиям, истории стоимости объектов недвижимости используя код доступа ... подробнее

Стоимость аренды 1 м² в месяц, нежилые помещения, Ростов-на-Дону

Нежилые помещения, Октябрьский

1040 ₽/м² в месяц

%
2,51%

Среднее по Ростову-на-Дону

1200 ₽/м² в месяц

%
2,73%

По данным статистики цен на аренду недвижимости системы НЕАГЕНТ на 21.04.2026