Продаю 3-ком. квартиру, г. Северск, ул. Победы

3-комн.

квартира

62,9 м²

общая

9 из 9

этаж

Панельный

Тип дома

Описание

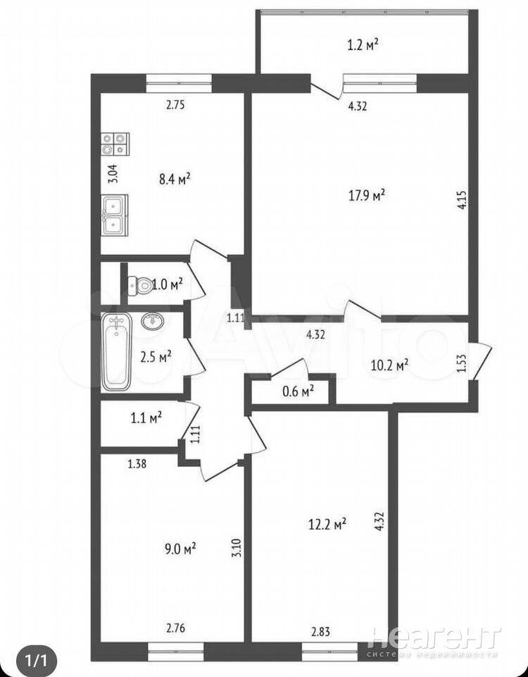
Продаю 3-х комнатную квартиру площадью 62,9 кв. м на 9 этаже 9 этажного панельного дома. Квартира 62,9 м. Уютная, тёплая и очень светлая квартира в хорошем районе. Дом расположен в тихом, зелёном месте, но рядом всё, что нужно для комфортной жизни: школы, детский сад, магазины, остановки общественного транспорта и ТРЦ Лето всего в нескольких минутах пешком. Планировка удобная: три изолированные комнаты (18, 12 и 9 м); просторная кухня 8 м ; раздельный санузел и кладовая. В квартире выполнен аккуратный косметический ремонт: линолеум на полу, пластиковые окна с москитными сетками; новые радиаторы отопления; заменены межкомнатные и входная двери; исправные инженерные системы, электросеть рассчитана на современные приборы. Дом расположен в районе с развитой инфраструктурой и отличной транспортной доступностью. Школа и детский сад в 3 5 минутах ходьбы, остановка транспорта в 7 минутах. До центра города можно добраться быстро и удобно. Квартира идеально подойдёт для семьи с детьми или для тех, кто ищет надёжную долгосрочную инвестицию: район стабильно пользуется спросом у арендаторов. Возможен торг реальным покупателям.

Инфраструктура

5 100 000 ₽
81 081 ₽/м²
11 ноября 2025
Контакт собственника
Поделиться
Избранное
На карте
История цены
Похожие списком

Томскг. СеверскКоммунистический проспект

Квартира со свежим косметическим ремонтом. Торг. Квартира ухоженная, светлая, летом комфортно, а зимой тепло. Частично обновлена в 2024 2025 годах можно заехать и жить без срочных вложений ...
6 350 000 
85 тыс. ₽/м²
Вчера

Томскг. Северск

Квартира в новом кирпичном доме. Квартира расположена на высоком первом этаже комфортно и безопасно, без ощущения первого этажа. Площадь 91 м Продуманная современная планировка: кухня-гостиная ...
14 500 000 
159 тыс. ₽/м²
23 апреля
1

Томскг. Северск

Квартира с шикарным видом в новом кирпичном доме 2025 года постройки. В квартире предусмотрена гардеробная, а также раздельный санузел. Черновая отделка. Дом оборудован консьержем и имеет ...
10 300 000 
118 тыс. ₽/м²
20 апреля

Томскг. Северск

Продаю 3-х комнатную квартиру площадью 65 кв. м на 3 этаже 9 этажного кирпичного дома. Собственник. Требуется ремонт. ...
5 700 000 
88 тыс. ₽/м²
19 апреля

Томскг. Северскул. Курчатова

Дом расположен в районе с развитой инфраструктурой, все о чем можно мечтать, в шаговой доступности. Музыкальный театр, все виды магазинов, школа, детские сады. Вид из окна на театральную ...
9 000 000 
109 тыс. ₽/м²
3 апреля

Томскг. Северск

Без обременений и Долгов. Один собственник. Квартира распашная с удобной планировкой, есть отдельная кладовая. Квартира теплая. Удобный район с развитой инфраструктурой. Рядом школы, множество ...
4 600 000 
72 тыс. ₽/м²
4 февраля

Открыть полный доступ

Введите ваш код доступа к категории «Продажа 3-х комнатных квартир»

Нет кода?

Вы можете открыть полный доступ к контактам собственников в объявлениях, фотографиям, истории стоимости объектов недвижимости используя код доступа ... подробнее

Средняя стоимость м², квартиры, Томск, г. Северск

3-х ком. квартиры, г. Северск

86 820 ₽/м²

%
6,79%

Среднее по Томску

125 630 ₽/м²

%
0,18%

По данным статистики стоимости недвижимости системы НЕАГЕНТ на 01.05.2026

Наш телеграм

Telegram
Подпишитесь на наш канал с новостями сервиса — @neagent, стать участником группы недвижимости своего города, также подписаться на телеграм-бота, используя свой код доступа, получать уведомления о поступлениях новых объявлений — контактная информация

Следуюший совет