Сдается помещение, ул. Красноармейская

459 м²

общая

1 из 1

этаж

Описание

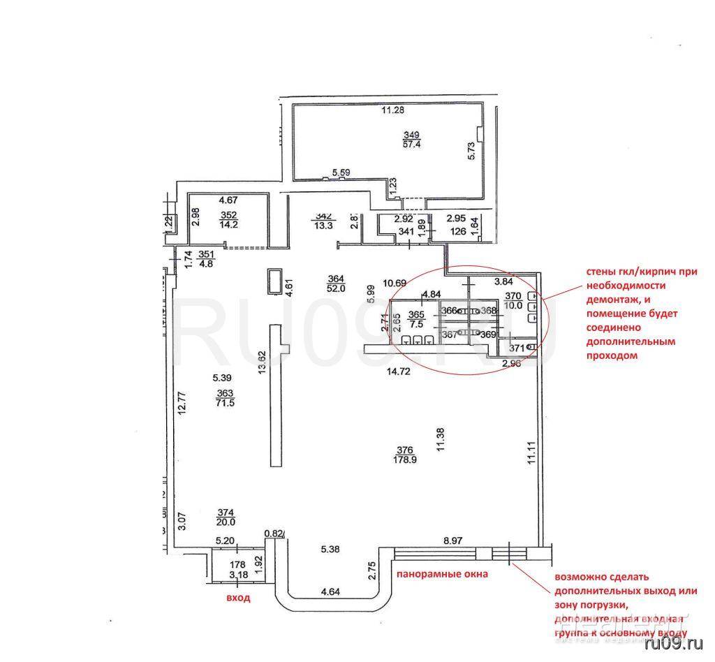
Сдаю в аренду помещение площадью 459 кв. м на 1 этаже 1 этажного. Собственник. Помещение для Вашего бизнеса. Сдается в аренду помещение площадью 459, 8 кв. м с отдельным входом и панорамными окнамиОтд. Вход с улицы, витринные окнаПодходит: офис, магазин, кафе, банк или любое коммерческое использование. Удобное месторасположение, рядом ДворецСпорта, напротив парк с музыкальным фонтаном. Кардиоцентр, вся линейка по зданию заполнена стабильными операторами, хорошая проходимость. Аренда: 1000 руб./кв. м. Дополнительные платежи: эл-во, вода, отопление в холодный период, охрана (коммуникации проведены), вывоз мусора (спец договор на минимальных условиях), интернет (оптоволокно Ростелеком). Условия оплаты НАЛ/безнал/карта Предоставление отчётных документов Установлена охранно-пожарная сигнализация Просторная парковка для посетителей 30-40 машин Выделенная мощность 60 кВт Высота потолков чистовой 3, 51 м, черновой 60 см Две мокрые точки Тамбур с тепловой завесой Готовы заключить договор аренды на срок более 1 года с регистрацией в Росреестре На данный момент оборудованы с/у, кухня для персонала, отдельный офис для руководителя, чистовое складское помещение. Помещение ремонта не требует, но при вашем дизайн проекте, оперативное согласование на конструктивные изменения. Не упустите возможность открыть свой бизнес в удобном и просторном помещении. Идем на встречу, обсуждаем условия взаимовыгодного сотрудничества. Для подробной информации и просмотра обращаться по телефону 8-952-807-31-98. Светлана.

Инфраструктура

390 850 ₽

в месяц

852 ₽/м²
26 апреля
Телефон собственника

+7 95*-***-****

Поделиться
Избранное
На карте
Панорама
История цены
Похожие списком
нет фото

ТомскМокрушинаул. Нефтяная

Сдаю помещение площадью 270 кв. м в одноэтажном кирпичном доме. Собственник. Сдам Нежилое отдельно стоящее здание в районе пл. Южной ул Нефтяная. Общей площадью от 270- до370 кв. м. Можно ...
1 000 000 
3704 ₽/м²
Позавчера

ТомскДворец спортаул. Учебная

Собственник. Отдельный вход, много парковочных мест, свой ключ от шлагбаума, парковка только для сотрудников. Доступ 24/7-рядом остановка общественного транспорта (напротив смайл сити) ...
32 000 
889 ₽/м²
Позавчера

ТомскДворец спортаул. Красноармейская

Сдаю помещение площадью 292 кв. м для Вашего бизнеса. Сдается в аренду помещение площадью 292, 8 кв. м с отдельным входом. Без мебели. Отд. вход, система вентиляции как для общепита. Любое ...
200 000 
685 ₽/м²
26 апреля

ТомскДворец спортаул. Красноармейская

Сдам торговое помещение. Также в торговом центре есть свободное торговое помещение 25 кв. м -22500 руб. и свободный офис 10 кв. м - 6850.  ...
27 500 
811 ₽/м²
23 апреля
1

ТомскДворец спортаул. Красноармейская

Собственник. Сдам офис. Удобное расположение, большая уличная парковка, много вокруг различных магазинов, хорошая транспортная доступность.  ...
6850 
685 ₽/м²
23 апреля

ТомскДом Книгиул. Новгородская

Сдаю помещение площадью 406 кв. м в одноэтажном кирпичном доме. Собственник. Сдаются в аренду офисные помещения, расположенные по адресу г. Томск, ул. Новгородская, 37 общей площадью 406 ...
203 000 
500 ₽/м²
21 апреля

Открыть полный доступ

Введите ваш код доступа к категории «Аренда нежилых помещений»

Нет кода?

Вы можете открыть полный доступ к контактам собственников в объявлениях, фотографиям, истории стоимости объектов недвижимости используя код доступа ... подробнее

Стоимость аренды 1 м² в месяц, нежилые помещения, Томск

Нежилые помещения, Дворец спорта

930 ₽/м² в месяц

%
1,95%

Среднее по Томску

820 ₽/м² в месяц

%
1,14%

По данным статистики цен на аренду недвижимости системы НЕАГЕНТ на 01.05.2026

Как снять квартиру

Объявления в разделе аренды теряют свою актуальность очень быстро, чем скорее вы позвоните собственнику, после появления объявления на сайте, тем больше шансов совершить удачную сделку. При звонке необходимо договориться о просмотре квартиры, желательно взять с собой задаток и договор найма (см. следующий совет)

Следуюший совет