Продам дом, Парфеново, ул. Есенина

127 м²

общая

1

этаж

Косметический

Состояние ремонта

Описание

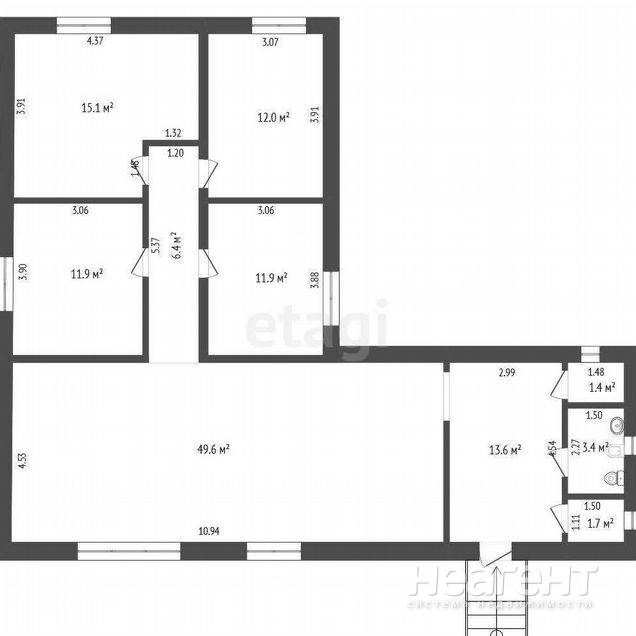
Продаю дом площадью 127 кв. м на участке 7,8 соток. Продается уютный и надежный дом прямо в городе. Он станет идеальным местом для комфортной жизни вашей семьи. Собственник. Этот просторный дом площадью 127 квадратных метров расположен на широкой и спокойной улице на участке общей площадью 12 соток. Одноэтажный дом построен из поревита и обложен кирпичем. В доме 4 комнаты, огромная кухня - гостиная 49,6 кв. м (где можно готовить и собираться всей семьей за общим столом), просторная прихожая, санузел, душевая, котельная. Удобно и комфортно будет всем - и хозяевам, и гостям. Ремонт косметический, натяжные потолки, стены покрашены, пол на кухне и в коридоре плитка, в комнатах ламинат. При продаже продавец заберет холодильник, стиральную машину, микроволновку и личные вещи. Дом построен из поревита и облицован кирпичом, что придает ему привлекательный внешний вид и долговечность. Пластиковые окна обеспечивают отличную тепло- и звукоизоляцию, создавая комфортную атмосферу внутри. Газовое отопление обеспечит тепло и уют в холодное время года, а центральный водопровод и собственная скважина гарантируют бесперебойное водоснабжение. Канализация - септик. Территорию двора украшают две туи и голубая ель, цветы и многочисленные зеленые насаждения. На территории участка есть гараж (дверь автоматическая), погреб, деревянная беседка. Также на территории участка стоит электрический столб с городским освещением. Любители природы оценят плодоносящий сад, где можно наслаждаться свежими фруктами, имеются все насаждения: вишня, смородина (черная, красная, белая), черноплодная рябина, яблоня, груша, слива, малина. Земля на огороде разработана, имеются две теплицы. В данный момент земля и теплицы не используются по назначению. На территории огорода за домом есть большой сарай и оборудованный курятник. На огороде имеется освещение. Район обладает развитой инфраструктурой: в пешей доступности находятся детский сад, школа, поликлиника, аквапарк и несколько торговых центров с разнообразными магазинами и услугами. Транспортная доступность еще одно преимущество: рядом проходят основные автодороги, обеспечивающие быстрый выезд в центр города и к магистралям. В шаговой доступности все объекты инфраструктуры. Не упустите уникальную возможность стать владельцем этого отличного дома. Звоните прямо сейчас, чтобы записаться на просмотр и сделать первый шаг к вашей мечте. Собственник.

Инфраструктура

15 150 000 ₽
119 291 ₽/м²
25 ноября 2025
Контакт собственника
Поделиться
Избранное
На карте
История цены
Похожие списком

ТюменьПарфеново

Продаю дом площадью 96 кв. м на участке 9,2 сотки. Собственник. Продается дом, расположенный в 10 минутах от центра города по адресу ул. Доронина д. 12. в доме есть все удобства для комфортного ...
6 500 000 
68 тыс. ₽/м²
1 декабря 2025

Открыть полный доступ

Введите ваш код доступа к категории «Продажа домов»

Нет кода?

Вы можете открыть полный доступ к контактам собственников в объявлениях, фотографиям, истории стоимости объектов недвижимости используя код доступа ... подробнее

Цена за 1 м², дома, в Тюмени, Парфеново

Дома, дачи, Парфеново

88 510 ₽/м²

%
5,64%

Среднее по Тюмени

93 610 ₽/м²

%
5,71%

По данным статистики стоимости недвижимости системы НЕАГЕНТ на 20.04.2026

Наш твиттер X

Twitter Записки модератора, интересные отрывки из объявлений - twitter.com/neagent_info

Следуюший совет