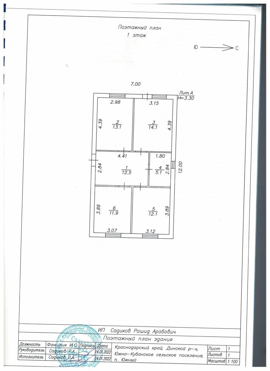
Продам дом, Динской р-н поселок Южный (ул Белореченская)
71,2 м²
общая
1
этаж
Кирпичный
Тип дома
Описание
Продам 1-этажный кирпичный дом площадью 71,2 кв. м. Продается кирпичный дом 7 х12 (ИЖС) в экологически чистом поселке, недалеко от Краснодара. В поселке своя школа, детсад, большая детская площадка. В доме 3 комнаты, кухня-гостиная с выходом на задний двор. установлена сплит-система. К кухне, коридоре и сан. узле теплый пол, керамо-гранитная плитка. Сан/узел полностью выложен плиткой. В комнатах - ламинат. Подключен интернет и кабельное телевидение. Во всех комнатах установлен двойной стеклопакет.Участок 3 сотки, ухоженный. Вокруг дома выложена плитка. Подготовлена площадка (забетонирована) для мангальной зоны. Посажены фруктовые деревья кустарники, цветы. Все делали для себя, ни на продажу.
Продажа от собственника. Возможен обмен. Принимаю услуги посредников. Контактное лицо: Галина
