Продам дом, Горхутор, ул. Пригородная, хозяин

47 м²

общая

Косметический

Состояние ремонта

Описание

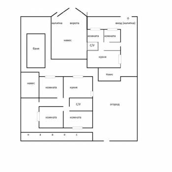
Продаю дом площадью 47 кв. м на участке 5 соток. Общая площадь дома 50 м. На 1-м этаже находится 2 жилые комнаты, кухня, санузел. На 2-м две комнаты. Коммуникации центральные (свет, газ, вода). Во дворе навес. Удобное расположение: рядом 65 школа (пешком 5-7 минут ходьбы). Баскет-Холл, ТЦ Красная Площадь. Много общественного транспорта, магазины. Ни дачи, ни СНТ.

Инфраструктура

Школа №65 ~ 7 мин
9 000 000 ₽
191 489 ₽/м²
12 ноября 2025
Контакт собственника
Поделиться
Избранное
На карте
Панорама
История цены
Похожие списком

Краснодарп. Северный

Продаю дом площадью 228 кв. м на участке 8 соток. Срочная продажа. Продается просторный кирпичный дом. Дом строили для себя по профессиональному проекту с учетом сейсмозоны (каркас монолитный ...
42 300 000 
186 тыс. ₽/м²
Вчера

КраснодарРИПул. Силантьева

Продаю дом площадью 600 кв. м на участке 8 соток. Два этажа, четыре уровня (подвал, первый этаж, второй этаж, мансардный этаж). Газ, вода, электричество - центральные, канализация септик ...
35 000 000 
58 тыс. ₽/м²
Позавчера

КраснодарГорхуторул. Карантинная

Продаю дом площадью 50 кв. м на участке 3,2 сотки. Продаю дом 50 кв. м микрорайон Горхутор в Краснодаре. Земля ИЖС 3,2 сотки. Два взрослых собственника более 5 лет. Дом построен в 2017 году ...
8 300 000 
166 тыс. ₽/м²
Позавчера

КраснодарГорхуторул. Агрономическая

Продаю дом площадью 160 кв. м на участке 3 сотки. Дома. Продается дом от собственника, район Баскет Холла, ул. Агрономическая ИЖС Один собственник. Никто не прописан в доме. Подходит в ипотеку ...
8 000 000 
50 тыс. ₽/м²
27 апреля

Краснодарп. Северныйул. Большевистская

Продаю дом площадью 210 кв. м на участке 6 соток. Продается кирпичный коттедж 209,7 м на участке 5,7 сот (ИЖС). Это идеальная база для создания дома вашей мечты без лишних трат и нервов ...
19 000 000 
90 тыс. ₽/м²
27 апреля

КраснодарБаскет-холл

Продаю дом площадью 100 кв. м на участке 4 сотки. КП Золотой город (Прикубанский округ). Кирпичный дом 100 м, участок 4 сотки, ИЖС, 2020 г. готов к проживанию. Планировка: кухня + 2 спальни ...
15 000 000 
150 тыс. ₽/м²
26 апреля

Открыть полный доступ

Введите ваш код доступа к категории «Продажа домов»

Нет кода?

Вы можете открыть полный доступ к контактам собственников в объявлениях, фотографиям, истории стоимости объектов недвижимости используя код доступа ... подробнее

Средняя стоимость м², дома, Краснодар, Горхутор

Дома, дачи, Горхутор

145 810 ₽/м²

%
5,11%

Среднее по Краснодару

132 820 ₽/м²

%
1,18%

По данным статистики стоимости недвижимости системы НЕАГЕНТ на 01.05.2026