Продаю 1-к квартиру, ЖК Парк Победы 2, мкр-н Парк Победы

1-комн.

квартира

36,6 м²

общая

7 из 9

этаж

Мон. кирп.

Тип дома

Описание

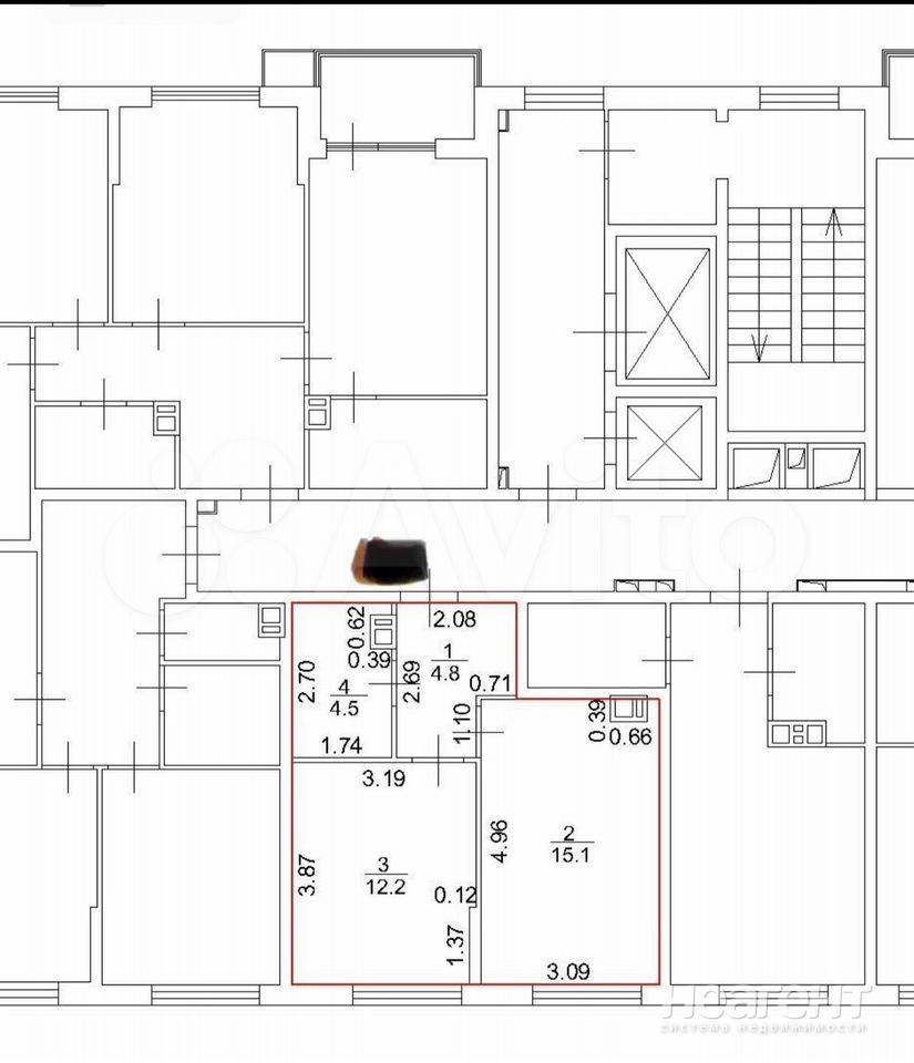
Продаю 1-комнатную квартиру площадью 36,6 кв. м на 7 этаже 9 этажного монолитно-кирпичного дома. Продаётся современная евро 2-комнатная квартира в новом жилом комплексе Парк Победы 2 (г. Краснодар, p-н Западного обхода). Собственник, без посредников и комиссий агентств. Предлагается к продаже светлая и просторная квартира в только что сданном доме. Ремонт выполнен с использованием качественных материалов, готова для комфортного проживания. Планировка: Удачная, изолированные комнаты, кухня-гостиная 15,1 м, спальня 12,2 кв. м, просторный санузел. Характеристики. Общая площадь: 36,6 м Жилая площадь: 12,2 м Кухня: 15,1 м Этаж: 7-й из 9. Санузел: совместный. Отделка: современная, качественная чистовая отделка. Ключевые преимущества комплекса. Новый дом: Современные материалы и технологии, новая инженерия. Инфраструктура для семьи: На территории комплекса уже построены и функционируют новая современная школа и детский сад. Развитая транспортная доступность: в ближайшее время планируется запуск новой трамвайной ветки, что значительно улучшит сообщение с другими районами города. Дополнительно. Во дворе оборудованы детские и спортивные площадки. Спокойный, зеленый район. Квартира идеально подойдет для молодой семьи или инвестора.

Район

Энка (Поселок им. Жукова) показать на карте

Инфраструктура

Магнит ~ 4 мин
6 990 000 ₽
190 984 ₽/м²
16 апреля
Контакт собственника
Поделиться
Избранное
На карте
История цены
Похожие списком

КраснодарБаскет-холлул. Конгрессная

Со всеми удобствами с отличным ремонтом. Вся мебель остаётся, заезжай и живи. Рядом развитая инфраструктура, транспортная развязка. ...
5 500 000 
167 тыс. ₽/м²
Сегодня

Краснодар2-я Площадкаул. Героя Ростовского

Собственник. Уютная квартира-студия в новом ЖК Ракурс, ул. Героя Ростовского, 8/5. Ваша мечта о собственном уютном гнёздышке в Краснодаре стала реальностью. Представляю просторную и светлую ...
3 950 000 
141 тыс. ₽/м²
Сегодня

КраснодарБаскет-холлул. Конгрессная

Евро 1 к. квартира в престижном ЖК Достояние. Новый современный ремонт, обставленный всей необходимой мебелью. Документы готовы к сделке. Собственник. ...
5 480 000 
183 тыс. ₽/м²
Вчера

КраснодарЭнкаул. Героя Хабибуллина

Квартира в состоянии «как была получена от застройщика в 2017 г». в квартире ничего не делалось. Один собственник. Причина продажи - приобретение другой собственности. Риелторов прошу не ...
4 000 000 
120 тыс. ₽/м²
Вчера

КраснодарЭнка

Литер 22 корпус 2. Квартира с возможностью оформления под ваш вкус. Высокие потолки 3 метра создают ощущение простора. Дом монолитно-кирпичный, построен в 2024 году, что гарантирует современное ...
4 000 000 
143 тыс. ₽/м²
Вчера

КраснодарЭнкаул. Героя Хабибуллина

Квартира в современном и развитом районе. Дом отличается удобной инфраструктурой: прямо внутри расположены магазины Магнит. Красное & Белое, Пятёрочка, а также пункты выдачи Ozon и Wildberries ...
4 200 000 
125 тыс. ₽/м²
Вчера

Открыть полный доступ

Введите ваш код доступа к категории «Продажа 1-комнатных квартир»

Нет кода?

Вы можете открыть полный доступ к контактам собственников в объявлениях, фотографиям, истории стоимости объектов недвижимости используя код доступа ... подробнее

Средняя цена м², квартиры, Краснодар, Энка

1-ком. квартиры, Энка

154 030 ₽/м²

%
1,6%

Среднее по Краснодару

148 140 ₽/м²

%
0,25%

По данным статистики стоимости недвижимости системы НЕАГЕНТ на 03.05.2026