Продаю нежилое помещение, ЖК Гулливер (ул. Российская)

14 м²

общая

1

этаж

Описание

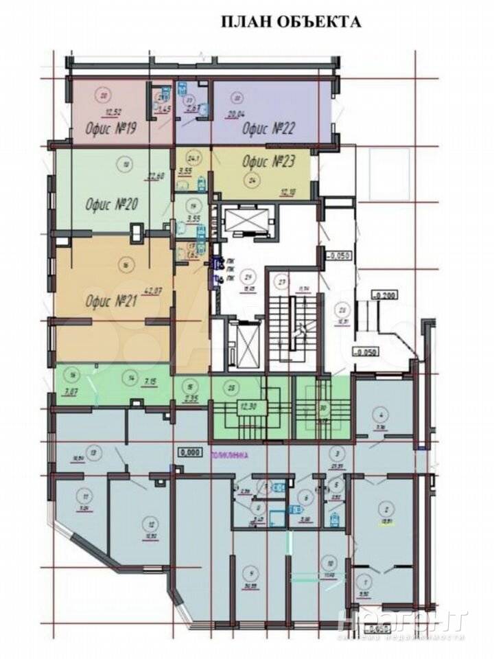
Продаю помещение площадью 13,97 кв. м на 1 этаже дома. Коммерческое помещение в ЖК Гулливер Комплекс рассчитан на проживание более 1600, высокий пешеходный трафик. Свой офис с сан. узлом - под мини салон: реснички, маникюр, косметолог, фруктовую лавку, булочную и т. д. Рядом Лента, транспортная развязка улица Российская - во все стороны города. Сдача объекта декабрь 2025-январь 2026. Застройщик Специализированный застройщик Екатеринодар Инвест-Строй. 1 этаж. Офис 19. Локация: Краснодар, район ТК Лента. Общая площадь: 13,97. Высота потолков: 3 м. Коммуникации центральные.

Район

РИП (Район завода радиоизмер. приборов) показать на карте

Инфраструктура

Лента ~ 2 мин Магнит ~ 11 мин
3 300 000 ₽
236 220 ₽/м²
16 апреля
Контакт собственника
Поделиться
Избранное
На карте
Панорама
История цены
Похожие списком

КраснодарРИП

Продаётся помещение свободного назначения. Цокольный этаж. Общая площадь 36,1 кв. м. Сделан современный ремонт. Никто не жил. Все продумано до мелочей, имеются все подключения для: кухонной ...
2 700 000 
75 тыс. ₽/м²
Сегодня

КраснодарРИПул. Прокофьева

Цоколь. Остаётся шкаф. Можно под коммерцию, или жить там. Прописки нет. Вода холодная и горячая круглый год. Отдельный вход со двора. Сплит-система, вытяжка. Один автоматический роллет ...
3 300 000 
55 тыс. ₽/м²
Сегодня

КраснодарРИПул. Евгении Жигуленко

Продается два торговых помещения рядом друг с другом по 29 кв. м правильной прямоугольной формы. Фото номер 4 (пом. 7, 8) с выходом на ул. E. Жигуленко - первая линия. Назначение - коммерция ...
4 490 000 
155 тыс. ₽/м²
Сегодня

КраснодарРИПул. Петра Метальникова

Помещение реальное, 12,7 кв. м, высота потолков три с чем-то метров, внутри помещения труб нет, первое от входа, сан/узел на этаже (напротив). Доступ 24/7.  ...
900 000 
71 тыс. ₽/м²
Сегодня

КраснодарРИПул. Московская

Помещение расположено на 1 этаже 17-этажного жилого комплекса на 2,5 тыс квартир. Вход в помещение без ступенек. Панорамные окна, много света. Есть парковка на улице. Хороший ремонт. Готово ...
10 200 000 
113 тыс. ₽/м²
Сегодня

КраснодарРИПул. Московская

Продам помещение, окон нет, отопление тоже, но обогреватель справляется, сухое, прекрасно подходит под склад и хранение, есть постоянные арендуемые. Хорошее вложение под бизнес.  ...
2 700 000 
56 тыс. ₽/м²
Сегодня

Открыть полный доступ

Введите ваш код доступа к категории «Продажа нежилых помещений»

Нет кода?

Вы можете открыть полный доступ к контактам собственников в объявлениях, фотографиям, истории стоимости объектов недвижимости используя код доступа ... подробнее

Средняя стоимость м², недвижимость, Краснодар, РИП

Нежилые помещения, РИП

108 700 ₽/м²

%
4,38%

Среднее по Краснодару

124 690 ₽/м²

%
0,48%

По данным статистики стоимости недвижимости системы НЕАГЕНТ на 01.05.2026