Продажа дома, СНТ Строитель, ул. Сиреневая
100 м²
общая
2
этажа
Требует ремонта
Состояние ремонта
Описание
Продаю новый дом. Я собственник. Не застройщик.Все строили качественно, есть фото или видео каждого этапа и используемых материалов.
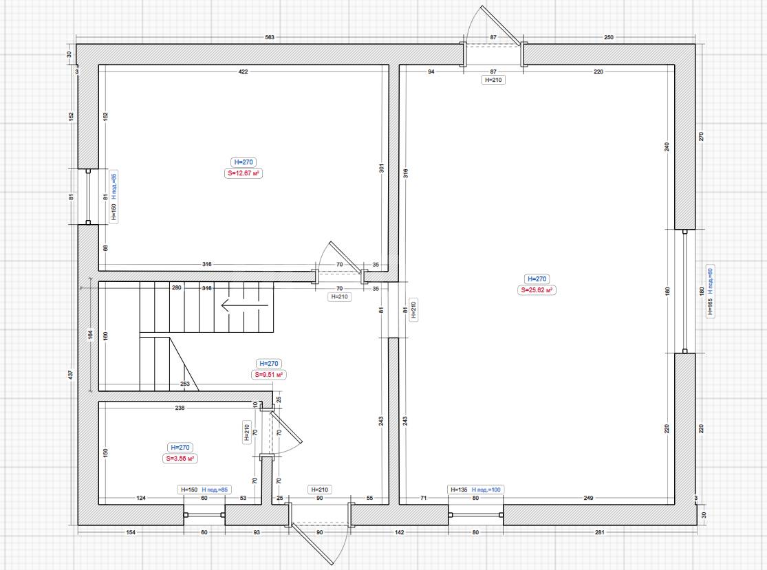
Продуманная планировка, первый этаж большая кухня-гостинная, 1 комната и санузел. Второй этаж сейчас свободное пространство, предполагает 2 комнаты.
Ровный и чистый участок в 4 сотки.
Вода чистая, вкусная - глубокая скважина на 31 метр с качественным глубинным насосом и автоматикой.
Большой септик на 8 кубов и уже подключен свет Россети. Есть даже 3 фазы и 15 кв. Удобное расположение - по трассе до города реально 15-20 минут.
Школа и сад 5 минут на машине. Детей в школу возит автобус.
Рядом магазины, аптека, озон, ВБ, Яндекс. Даже Сто. Красивое место, рядом озеро с фонтаном, детская площадка, озеро Лотосов и река Кубань.
Звоните, пишите, договоримся о встрече.
Дом не фейк, реально есть и Вы посмотрите именно его.
Приезжайте, посмотрите, вам понравится. Я сам живу рядом и люблю это место. Оно отлично подойдёт и как дом для жизни (можно сделать городскую прописку), и как загородный дом.
Посредникам просьба не беспокоить. Контактное лицо: Данила






