Продается 1-эт коттедж, поселок Сухая Балка, коттеджный поселок Скандинавия, ул. Балтийская

200 м²

общая

1

этаж

Кирпичный

Тип дома

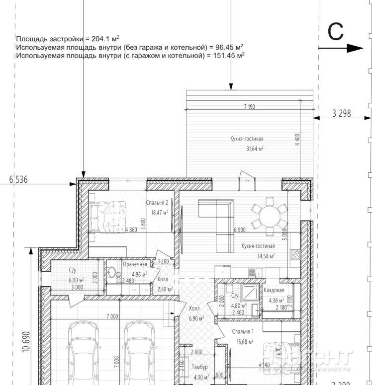
Описание

Продаю дом площадью 200 кв. м кирпичного дома. Продается уютный дом в закрытом поселке Скандинавия. Преимущества поселка: Закрытая территория Детская площадка Магазин Основные характеристики дома: Фундамент: надежные буронабивные сваи Плита по ростверку: 200 мм, обеспечивающая прочность и долговечность Утепление плиты: 100 мм, что гарантирует комфортную температуру в любое время года Стены: 250 мм кирпич с утеплением 100 мм и облицовкой из кирпича 100 мм отличный выбор для защиты от холода и шума Кровля: плита 200 мм с утеплением 200 мм, что обеспечивает надежную защиту от погодных условий Электричество: мощность 15 кВт, что позволит подключить все необходимые бытовые приборы Водоснабжение: центральное, что избавляет от необходимости беспокоиться о водоснабжении Участок: 10 соток достаточно пространства для создания собственного сада, зоны для отдыха или даже бассейна.
20 000 000 ₽
100 000 ₽/м²
1 декабря 2025
Контакт собственника

+7 9**-***-****

Поделиться
Избранное
На карте
История цены
Похожие списком

КрасноярскКрасноярский край

Продаю дом площадью 162 кв. м на участке 18 соток. Продам дом. Сухая балка Емельяновский район, рядом с котеджным поселком Скандинавия, два участка по 9 соток, земли населённых пунктов, ...
10 500 000 
65 тыс. ₽/м²
6 мая

КрасноярскКрасноярский край

Продаю дом площадью 62,5 кв. м. Два дома на участке 12 соток. Первый дом 25 кв 1 этаж, второй дом с мансардой 37,5 кв.  ...
6 000 000 
96 тыс. ₽/м²
3 мая

КрасноярскКрасноярский край

Продаю дом площадью 67 кв. м на участке 10 соток. Вода центральная. Отопление котел электрический. Теплые полы. ...
9 000 000 
134 тыс. ₽/м²
19 апреля

КрасноярскКрасноярский край

Продаю дом площадью 164 кв. м на участке 10 сот. Полностью готовый для жизни, новый дом, с мебелью и техникой, в закрытом, охраняемом поселке Скандинавия. Есть терраса, гараж на 2 машины ...
16 000 000 
98 тыс. ₽/м²
16 апреля

КрасноярскПригород

Продаю дом площадью 200 кв. м на участке 10 соток. Продам дом 200 кв. м. Участок 10 сот. Охраняемый посёлок, асфальт. 13 км от города. Очень удобное месторасположение. В любой конец города ...
13 500 000 
68 тыс. ₽/м²
13 апреля

Открыть полный доступ

Введите ваш код доступа к категории «Продажа домов»

Нет кода?

Вы можете открыть полный доступ к контактам собственников в объявлениях, фотографиям, истории стоимости объектов недвижимости используя код доступа ... подробнее

Средняя стоимость м², дома, Красноярск, Красноярский край

Дома, дачи, Красноярский край

59 230 ₽/м²

%
1,73%

Среднее по Красноярску

77 420 ₽/м²

%
1,35%

По данным статистики стоимости недвижимости системы НЕАГЕНТ на 13.05.2026

Утром ключи - вечером деньги

При аренде квартиры не следует переводить/передавать оплату вперед, то есть до получения и изучения всех необходимых документов. С владельцем квартиры рассчитываться только после того, как квартира будет тщательно осмотрена и все моменты будут зафиксированы в договоре и подписаны собственником, во избежание споров в дальнейшем

Следуюший совет