Продаю студию, ЖК Орбита (ул. Борисова)

1-комн.

квартира

24 м²

общая

4 из 19

этаж

Монолитный

Тип дома

Описание

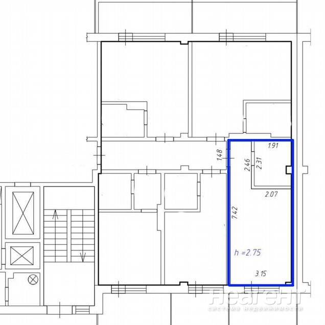
Продаю 1-комнатную квартиру площадью 24 кв. м на 4 этаже 19 этажного монолитного дома. Узаконенная выделенная доля - отдельный адрес, лицевой счет ЖКУ, вход и санузел, без ограничений и обременений. Уютная студия с косметическим ремонтом в монолитно-кирпичном доме 2014 года постройки. Просторная лоджия с прекрасным видом позволяет наслаждаться свежим воздухом. В квартире есть необходимая мебель и техника: шкаф, диван, стол, холодильник, плитка, стиральная машина. Дом оснащен пассажирским и грузовым лифтами, мусоропроводом. Во дворе обустроены детская и спортивная площадки, а также имеется открытая парковка. В шаговой доступности находятся берег Енисея, СФУ, лыжная база, перинатальный центр. Готовое решение для комфортной жизни или сдачи в аренду.

О доме

Дом построен в 2014 г. Лифты: есть Подъезды: 2 шт.

Инфраструктура

3 800 000 ₽
158 333 ₽/м²
Вчера30 апреля
Контакт собственника
Поделиться
Избранное
На карте
Панорама
История цены
Похожие списком

КрасноярскОктябрьскийДачная улица

Собственник, на втором этаже с видом на Енисей и Николаевский мост. Все подробности по телефону. Комиссия риэлторов + к цене.  ...
7 000 000 
98 тыс. ₽/м²
Сегодня

КрасноярскОктябрьскийул. 1-я Ленинградская

Продаю 1-комнатную квартиру площадью 31 кв. м на 2 этаже 2 этажного деревянного дома. Очень теплая квартира, хорошее расположение, экологически чистый район.  ...
2 300 000 
74 тыс. ₽/м²
Сегодня

КрасноярскСвердловскийул. Лесников

Риэлторам не звонить. Продажа только за нал. Продается Светлая, новая, уютная. 27.3 по документам, 29,3 по факту. Хорошее Парковочное место под крышей в аренде на многоуровневой парковке ...
5 000 000 
183 тыс. ₽/м²
Вчера

КрасноярскОктябрьскийул. Ленинградская

Квартира в самом экологичном р-не города. Кирпичный дом. Рядом СФУ, школа, детский сад. Березовая роща, стадион Динамо. Удобная развязка. Квартира полностью готова для проживания, остается ...
7 500 000 
190 тыс. ₽/м²
Вчера

КрасноярскОктябрьскийул. Академика Киренского

Собственник. Квартира с современным ремонтом (выполнялся в июле 25). Квартира расположена на четвертом этаже монолитно-кирпичного дома, плюсом идет мансарда - доп. спальное место. Из окон ...
3 200 000 
201 тыс. ₽/м²
Вчера

КрасноярскСтуденческий городокул. Борисова

По документам-квартира, не доля. Окна выходят на солнечную сторону, вид на Енисей. Большой балкон. Один собственник. Приобреталась от застройщика, прописанных нет. Идеальный вариант под ...
4 500 000 
180 тыс. ₽/м²
Вчера

Открыть полный доступ

Введите ваш код доступа к категории «Продажа 1-комнатных квартир»

Нет кода?

Вы можете открыть полный доступ к контактам собственников в объявлениях, фотографиям, истории стоимости объектов недвижимости используя код доступа ... подробнее

Стоимость 1 м², квартиры, Красноярск, Студенческий городок

1-ком. квартиры, Студенческий городок

167 840 ₽/м²

%
4,08%

Среднее по Красноярску

149 540 ₽/м²

%
0,32%

По данным статистики стоимости недвижимости системы НЕАГЕНТ на 01.05.2026

Наш телеграм

Telegram
Подпишитесь на наш канал с новостями сервиса — @neagent, стать участником группы недвижимости своего города, также подписаться на телеграм-бота, используя свой код доступа, получать уведомления о поступлениях новых объявлений — контактная информация

Следуюший совет