Продаю 3-х к квартиру, Центральный, ул. Новороссийской республики

3-комн.

квартира

80,9 м²

общая

4 из 4

этаж

Блочный

Тип дома

Описание

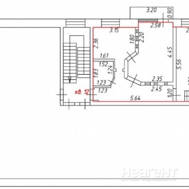
Продаю 3-х комнатную квартиру площадью 80,9 кв. м на 4 этаже 4 этажного блочного дома. Двухэтажная квартира в центре Новороссийска. Рассмотрю обмен на 1 комнатную квартиру в Новороссийске с доплатой с вашей стороны. То есть от меня)). Вырос в ней, делал своими руками ремонт и перепланировку вместе со своим отцом. Поэтому знаю о ней все. Дом крепкий, строился бригадой судоремонтников в 1965 году, во главе которой был мой дедушка. Поэтому с первого кирпича все строилось для себя. Когда нибудь я напишу книгу и целую главу отдам описанию лучших эпизодов, связанных с этой замечательной квартирой. Я музыкант и писал в ней много хорошей музыки, в ней жили художники и творческие люди, часто находившие вдохновение в ее стенах. Дом с хорошей атмосферой и для спокойной размеренной жизни. Вся площадь и перепланировка узаконена и имеет полный пакет прозрачных документов. Выписку из ЕГРН могу предоставить. Второй этаж мансарды практически повторяет площадь 1 этажа, в каждой комнате установлен кондиционер. Квартира потребует косметического ремонта. Из недочетов есть небольшое протекание при сильном дожде на части кровли мансарды. Траты небольшие, гидроизоляция. Санузел и кухня в исправном состоянии, колонка газовая. В общей сложности три жилых комнаты, коридор, балкон, кухня. В подарок отдам прочный гаражик во дворе. Отслуживший много лет мастерской моего отца, а следом я в нем парковал свой мотоцикл и хранили семейные закатки. Удобное расположение (до любого важного адреса - до 7 минут езды), все в спокойной пешей доступности. Детский сад, школа в 5 минутах ходьбы. Парк им. Ленина 5 мин ходьбы, аллея Новороссийской республики приведет вас к знаковому морскому вокзалу за 7 минут. Рынок, автовокзал - 8 минут пешком. Красная площадь - 10 минут. В общем, самое выгодное и удобное расположение. Удобно для бизнеса посуточно, так как квартира находится в самом узловом и выгодном расположении. Квартира спокойно разместит большую семью и будет радовать и дарить уют. Все вопросы по телефону или при личной встрече. Торг у порога).

О доме

Дом построен в 1960 г. Подъезды: 2 шт.
8 000 000 ₽
98 888 ₽/м²
6 апреля
Контакт собственника
Поделиться
Избранное
На карте
Панорама
История цены
Похожие списком

НовороссийскЦентральныйул. Рубина

Собственник продаёт 3-х комнатную квартиру, «брежневка». Идеальное расположение в центре города, - и в то же время тишина и парк. Видовая квартира, шикарный прямой вид на шпиль морского ...
6 750 000 
114 тыс. ₽/м²
Сегодня

НовороссийскЦентральныйул. Новороссийской республики

Квартира в самом центре Новороссийска, наилучшее расположение на набережной, рядом находится Форумная площадь. Крейсер Михаил Кутузов, кафе рестораны, салоны красоты, банки. Квартира 155 ...
30 000 000 
194 тыс. ₽/м²
Сегодня

НовороссийскЦентральныйул. Шевченко

Квартира с дизайнерским ремонтом в монолитном доме ЖК Регата, 2021 года постройки. Дом расположен в шаговой доступности от центральной набережной и парка Фрунзе. Все комнаты изолированы ...
30 000 000 
361 тыс. ₽/м²
Позавчера

НовороссийскЦентральныйул. Леднева

Квартира в центре города с окнами во двор и на ул. Советов. Жилая площадь 54, 5 кв. м, общая - 55,4 кв. м. Квартира находится в пешей доступности от моря. Закрытая территория. Во дворе ...
7 200 000 
119 тыс. ₽/м²
28 апреля

НовороссийскЦентральныйул. Коммунистическая

Собственник. Клубный Дом Европейский. Квартира в самом центре города Героя Новороссийск. Район красной площади, центрального рынка. Квартира с новым ремонтом, мебелью и техникой, с момента ...
17 399 000 
215 тыс. ₽/м²
28 апреля

НовороссийскЦентральныйул. Дзержинского

Квартира с потрясающим видом на море и горы. Предлагаю к продаже квартиру мечты в центральном и безопасном районе города Новороссийск. О квартире: Свежий дизайнерский ремонт (выполнен 1 ...
15 700 000 
250 тыс. ₽/м²
26 апреля

Открыть полный доступ

Введите ваш код доступа к категории «Продажа 3-х комнатных квартир»

Нет кода?

Вы можете открыть полный доступ к контактам собственников в объявлениях, фотографиям, истории стоимости объектов недвижимости используя код доступа ... подробнее

Стоимость 1 м², квартиры, Новороссийск, Центральный

3-х ком. квартиры, Центральный

192 100 ₽/м²

%
3,56%

Среднее по Новороссийску

164 960 ₽/м²

%
2,04%

По данным статистики стоимости недвижимости системы НЕАГЕНТ на 02.05.2026

Мобильная версия

PDA Удобно следить за новыми поступлениями объявлений с помощью мобильного телефона, планшета или любого другого мобильного портативного устройства, для которых доступна мобильная версия сайта

Следуюший совет