Продам 2-ком. квартиру, ЖК Фрейм, ул. Зорге

2-комн.

квартира

48 м²

общая

2 из 14

этаж

Монолитный

Тип дома

Описание

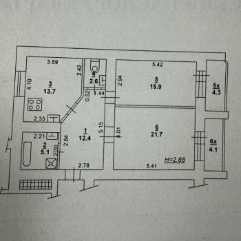
Продаю 2-х комнатную квартиру площадью 48 кв. м на 2 этаже 14 этажного монолитного дома. Готовый бизнес. Евро двушка в новом сданном доме, разделенная на две гостинки по 24 м каждая со своей кухонной зоной и сан узлом. Расположение дома отличное для сдачи в аренду, дом находится между ЮФУ и областной больницей. Возле рынка Привоз. Также рядом в 30 метрах новая школа. Шикарный вариант для бизнеса от собственника.

Жилой комплекс

Район

ЗЖМ (Западный жилой массив) показать на карте

Инфраструктура

8 600 000 ₽
179 167 ₽/м²
Сегодня23 апреля
Контакт собственника
Поделиться
Избранное
На карте
Панорама
История цены
Похожие списком

Ростов-на-ДонуЗЖМул. Содружества

Продаю 2-х комнатную квартиру площадью 54 кв. м на 1 этаже 10 этажного панельного дома. Удобное расположение, транспорт, школа, детский сад, рынок. Подробности по телефону. ...
7 300 000 
135 тыс. ₽/м²
Сегодня

Ростов-на-ДонуЗЖМул. Зорге

Продаю 2-х комнатную квартиру площадью 71,4 кв. м на 2 этаже 15 этажного кирпичного дома. Квартира на втором этаже кирпичного дома. Комнаты изолированные, что обеспечивает комфорт и приватность ...
8 990 000 
126 тыс. ₽/м²
Сегодня
1

Ростов-на-ДонуСоветскийул. Содружества

Высота потолков 2.7 метра, что добавляет пространства и света. Внутри апартаментов выполнен качественный евроремонт, который подчеркивает современный стиль и комфорт. Кухня площадью 7 кв ...
3 950 000 
87 тыс. ₽/м²
Сегодня

Ростов-на-ДонуЗЖМул. Мильчакова

Квартира в Ростове-на-Дону, в Западном микрорайоне по адресу улица Мильчакова, 45. Квартира располагается на 9-м этаже 10-этажного монолитного дома, построенного в 2004 году. Общая площадь ...
9 900 000 
180 тыс. ₽/м²
Вчера

Ростов-на-ДонуЗЖМул. Зорге

Квартира от собственника с изолированными комнатами. Кирпичный дом 2008 года постройки. Квартира требует косметического ремонта. Площадь позволяет воплотить любой дизайнерский проект в ...
10 100 000 
148 тыс. ₽/м²
Вчера

Ростов-на-ДонуЗЖМпроспект Стачки

Продаю личную квартиру в сданном в 2025 г в элитном бизнес - классе ЖК Times.- Расположение: в пешей доступности от квартиры находятся детские сады, школы, корпус ЮФУ, 3 парка (им. Плевен ...
10 400 000 
183 тыс. ₽/м²
Позавчера

Открыть полный доступ

Введите ваш код доступа к категории «Продажа 2-х комнатных квартир»

Нет кода?

Вы можете открыть полный доступ к контактам собственников в объявлениях, фотографиям, истории стоимости объектов недвижимости используя код доступа ... подробнее

Стоимость 1 м², квартиры, Ростов-на-Дону, ЗЖМ

2-х ком. квартиры, ЗЖМ

138 830 ₽/м²

%
0,94%

Среднее по Ростову-на-Дону

145 500 ₽/м²

%
0,56%

По данным статистики стоимости недвижимости системы НЕАГЕНТ на 23.04.2026