Продаю 3-х к квартиру, ЖК Левобережье, ул. Бориса Слюсаря

3-комн.

квартира

93 м²

общая

19 из 21

этаж

Описание

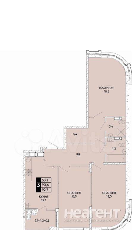
Продаю 3-х комнатную квартиру площадью 93 кв. м на 19 этаже 21 этажного дома. Квартира с открытым видом с левого берега на реку Дон и город. ЖК Левобережье. Есть кладовая на подземном паркинге 4,1 кв. м. Входит в стоимость. Квартира на 19 этаже. Дом сдан в июле. На территории ЖК детские сады и школа. Без обременений.

Инфраструктура

13 800 000 ₽
148 387 ₽/м²
26 апреля
Контакт собственника

+7 9**-***-****

Поделиться
Избранное
На карте
Панорама
История цены
Похожие списком

Ростов-на-ДонуКировскийул. Левобережная

Продаётся уникальная дизайнерская квартира площадью 70 м в одном из самых престижных жилых комплексов города ЖК Левобережье. О комплексе: Современный жилой комплекс с закрытой охраняемой ...
13 800 000 
197 тыс. ₽/м²
Сегодня

Ростов-на-ДонуКировский

Собственник. Продаю. Квартиру 93 кв. м в современном развитом ЖК Левобережье. Без обременений. Один собственник. Уместен минимальный торг. Соседи уже сделали ремонт, стучать никто не будет ...
11 900 000 
128 тыс. ₽/м²
Вчера

Ростов-на-ДонуКировскийул. Левобережная

Просторная квартира, с узаконенной перепланировкой, имеется дизайн проект, заново оштукатурены стены. От собственника без комиссий. Приветствуется сопровождение при сделке, полная сумма ...
12 500 000 
134 тыс. ₽/м²
Вчера

Ростов-на-ДонуКировскийул. Левобережная

Продаётся уникальная дизайнерская квартира площадью 70 м в одном из самых престижных жилых комплексов города ЖК Левобережье. О комплексе: Современный жилой комплекс с закрытой охраняемой ...
13 800 000 
197 тыс. ₽/м²
25 апреля

Ростов-на-ДонуКировскийул. Бориса Слюсаря

Я - один собственник. Квартира в ЖК Левобережье, литер 6, дома Park Residence. Ближайший дом к парку. Окна выходят во двор и на парк. Вся информация в объявлении актуальная. Квартира в ...
12 999 000 
141 тыс. ₽/м²
21 апреля
1

Ростов-на-ДонуКировскийул. Бориса Слюсаря

Продаю 3-х комнатную квартиру площадью 67,5 кв. м на 3 этаже 20 этажного кирпичного дома. Собственник.  ...
10 500 000 
156 тыс. ₽/м²
19 апреля

Открыть полный доступ

Введите ваш код доступа к категории «Продажа 3-х комнатных квартир»

Нет кода?

Вы можете открыть полный доступ к контактам собственников в объявлениях, фотографиям, истории стоимости объектов недвижимости используя код доступа ... подробнее

Средняя цена м², квартиры, Ростов-на-Дону, Кировский

3-х ком. квартиры, Кировский

170 010 ₽/м²

%
0,28%

Среднее по Ростову-на-Дону

134 480 ₽/м²

%
0,4%

По данным статистики стоимости недвижимости системы НЕАГЕНТ на 01.05.2026