Продажа 2-х комн. квартиры, проспект Маршала Жукова

2-комн.

квартира

54,2 м²

общая

19 из 19

этаж

Панельный

Тип дома

Описание

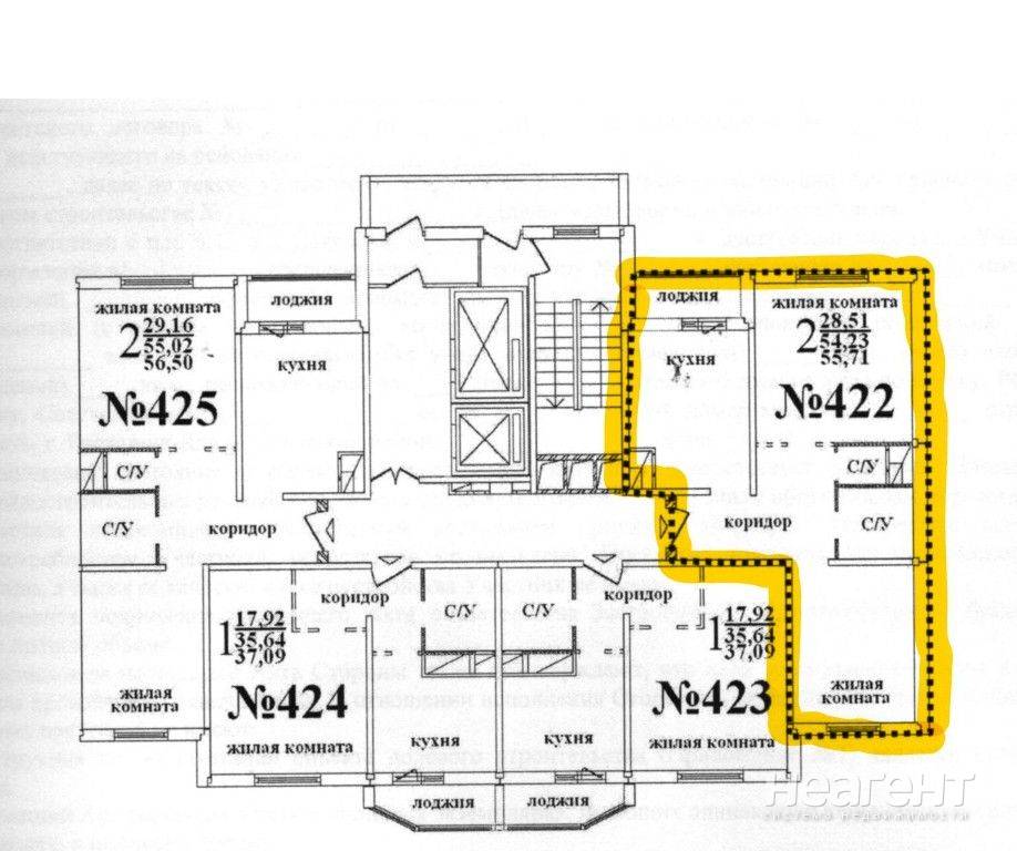
Продаю 2-х комнатную квартиру площадью 54,2 кв. м на 19 этаже 19 этажного панельного дома. Последний этаж. Панорамный вид на город. 4-е квартиры на этаже. Дверь на этаж запирается на ключ. Квартира расположена с торца дома. Общие с соседней квартирой стены коридора и одной жил. комнаты. Без обременений. Один собственник. Никто не прописан. Консьерж, видео наблюдение. Развитая инфраструктура: рядом (не дальше 150 м.) магазины, школа, детский сад. Во дворе оборудованные спортивные и детские площадки. Уличные автопарковки. Хорошая транспортная доступность: у дома автобусная остановка. Не обращаться с предложениями о «сотрудничестве», «содействии», «всесторонней помощи», заключении эксклюзивного договора и прочими видами и формами навязывания не нужных услуг.

О доме

Дом построен в 2017 г. Лифты: есть Подъезды: 6 шт. Класс энергоэффективности: B

Инфраструктура

6 000 000 ₽
110 701 ₽/м²
26 апреля
Контакт собственника

+7 9**-***-****

Поделиться
Избранное
На карте
Панорама
История цены
Похожие списком

Ростов-на-ДонуЛевенцовскийпроспект Солженицына

Квартира евротрехкомнатная, дом 2019 года постройки, покупали стройвариант, ремонт делали для себя с нуля, есть все фото этапов ремонта, использовались дорогие материалы, отдельное внимание ...
10 000 000 
133 тыс. ₽/м²
Вчера

Ростов-на-ДонуЛевенцовскийул. Ткачева

Продаю 2-х комнатную квартиру площадью 45 кв. м на 18 этаже 18 этажного дома. Квартира в сданном доме в Левенцовке. Подробности по телефону. ...
5 300 000 
118 тыс. ₽/м²
Вчера

Ростов-на-ДонуЛевенцовскийпроспект Маршала Жукова

Собственник. Продается светлая и уютная 2-комнатная квартира в современном жилом комплексе. Общая площадь 65 кв. м, жилая 35 кв. м, просторная кухня 19 кв. м. Квартира расположена на 20-м ...
9 490 000 
146 тыс. ₽/м²
Вчера

Ростов-на-ДонуЛевенцовскийпроспект Маршала Жукова

Квартира с новым качественным ремонтом. Укомплектована местами для хранения. Фото реальные. Осмотр по договоренности. ...
9 000 000 
170 тыс. ₽/м²
Вчера

Ростов-на-ДонуЛевенцовскийул. Ткачева

Я-собственник. Мебель, техника - по договорённости, после просмотра. Комнаты изолированные, раздельные, планировка «бабочка», выходят на две стороны: во двор и на «Золотой Вавилон». Из ...
7 100 000 
154 тыс. ₽/м²
30 апреля

Ростов-на-ДонуЛевенцовскийул. Ткачева

Квартира с современным евроремонтом. Планировка включает изолированные комнаты, что обеспечивает комфорт и приватность. Из окон открывается приятный вид на улицу. Кухня оборудована стильной ...
6 200 000 
132 тыс. ₽/м²
29 апреля

Открыть полный доступ

Введите ваш код доступа к категории «Продажа 2-х комнатных квартир»

Нет кода?

Вы можете открыть полный доступ к контактам собственников в объявлениях, фотографиям, истории стоимости объектов недвижимости используя код доступа ... подробнее

Цена за 1 м², квартиры, в Ростове-на-Дону, Левенцовский

2-х ком. квартиры, Левенцовский

139 130 ₽/м²

%
0,77%

Среднее по Ростову-на-Дону

145 540 ₽/м²

%
0,03%

По данным статистики стоимости недвижимости системы НЕАГЕНТ на 03.05.2026