Продаю 2-к квартиру, Зеленые горки, ул. Юрия Ковалева, не агентство

2-комн.

квартира

60 м²

общая

8 из 17

этаж

Панельный

Тип дома

Описание

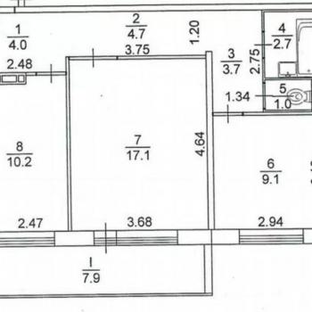
Продаю 2-х комнатную квартиру площадью 60 кв. м на 8 этаже 17 этажного панельного дома. Собственник. Квартира в новом престижном, экологически чистом микрорайоне города «Зеленые горки». Квартира в новом доме на среднем 8-ом этаже. Рядом с магазином «spar» и центром водных видов спорта «Звездный». в ванной комнате и туалете выполнен ремонт из плитки дорогой коллекции по индивидуальному проекту, натяжные потолки с точечными светильниками. Большая лоджия обшита евровагонкой, пол утеплен и сделан из половой доски. Установлена дорогая шумоизоляционная входная дверь. На этаже имеется кладовка отгорожена металлической дверью. В квартире с момента постройки дома никто не проживал. Делали все для себя. в доме два лифта (грузовой и обычный). Вокруг дома, в подъезде, в лифтах установлено видеонаблюдение. Прекрасный вид из окон вдаль на хвойный лес с двух сторон. Уютный зеленый двор с двумя детскими площадками. Вместительная парковка вокруг дома (место есть в любое время). в шаговой доступности школы: Академлицей. Эврика, детские сады. Остановка общественного транспорта в пяти минутах ходьбы. Рядом нет дорог поэтому тишина и чистый воздух.

Инфраструктура

7 000 000 ₽
116 667 ₽/м²
26 января
Телефон собственника

+7 95*-***-****

Поделиться
Избранное
На карте
Панорама
История цены
Похожие списком

ТомскЗеленые горкиул. Павла Нарановича

Квартира площадью 55.5 квадратных метров. Квартира расположена на последнем, шестнадцатом этаже монолитно-панельного дома, из окон которого открывается уникальный панорамный вид на город ...
6 300 000 
114 тыс. ₽/м²
Вчера

ТомскЗеленые горкиул. Андрея Крячкова

Квартира распашная переделанная в евротрёшку: Зал кухня студия + 2 комнаты. Продаётся с мебелью и техникой. Зал кухня студия: кухонный гарнитур мебельной фабрики grol (фурнитура Hettich ...
7 600 000 
127 тыс. ₽/м²
Вчера

ТомскЗеленые горкиул. Крячкова

Посредники мимо. Квартира с ремонтом от застройщика. Этаж 3. Новая, никто не жил. в собственности с момента постройки, абсолютно чистая, без условностей. Я сын собственника. Любая система ...
6 350 000 
107 тыс. ₽/м²
Позавчера

ТомскПодсолнухиул. Герасименко

Просторная кухня, две изолированные спальни, застекленный балкон, большая лоджия, свежий ремонт, оставляю квартиру с мебелью и встроенной техникой в связи с переездом в другой город в квартире ...
8 100 000 
128 тыс. ₽/м²
30 апреля

ТомскПодсолнухиул. Герасименко

Продаю свою уютную квартиру, расположенную в октябрьском районе г. Томска по адресу ул. Герасименко 3/14. Квартира 64 м, расположена на 10 этаже 17-ти этажного ...
8 100 000 
127 тыс. ₽/м²
28 апреля

ТомскПодсолнухиул. Герасименко

Продам 2-х комнатную квартиру площадью 52,5 кв. м на 9 этаже 17 этажного панельного дома. Продам отличную квартиру с новым ремонтом на 9 этаже 17-ти этажного дома. Окна выходят на лес - ...
6 300 000 
120 тыс. ₽/м²
28 апреля

Открыть полный доступ

Введите ваш код доступа к категории «Продажа 2-х комнатных квартир»

Нет кода?

Вы можете открыть полный доступ к контактам собственников в объявлениях, фотографиям, истории стоимости объектов недвижимости используя код доступа ... подробнее

Стоимость 1 м², квартиры, Томск, Зеленые горки

2-х ком. квартиры, Зеленые горки

122 350 ₽/м²

%
1,17%

Среднее по Томску

129 320 ₽/м²

%
0,75%

По данным статистики стоимости недвижимости системы НЕАГЕНТ на 03.05.2026

Наш телеграм

Telegram
Подпишитесь на наш канал с новостями сервиса — @neagent, стать участником группы недвижимости своего города, также подписаться на телеграм-бота, используя свой код доступа, получать уведомления о поступлениях новых объявлений — контактная информация

Следуюший совет