Продажа 2-х к квартиры, ЖК Зеленые горки, ул. Архитекторов

2-комн.

квартира

10 из 17

этаж

Панельный

Тип дома

Описание

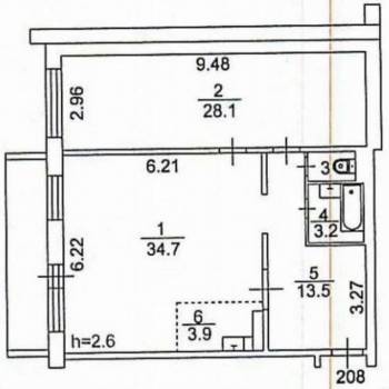
Продаю 2-х комнатную квартиру на 10 этаже 17 этажного панельного дома. Квартира в микрорайоне Зеленые горки. Дом расположен в очень удобном месте, рядом находится школа Эврика-Развитие, большой магазин Spar, спортивный комплекс Звездный, автобусная остановка, детские сады, многочисленные детские площадки, пункты выдачи ozon, WB и новая поликлиника (идет завершение строительства). Общая площадь квартиры 54 кв: включает в себя 2 изолированные комнаты, кухню, большой коридор, раздельный санузел, балкон. В квартире сделан качественный ремонт, на полу лежит плитка ПВХ, натяжные потолки, межкомнатные двери, кафель в санузлах, бойлер на 50 л. При продаже новым хозяевам остается кухонный гарнитур с техникой, холодильник, встроенные шкафы-купе в коридоре. В доме находится 2 лифта на 0 этаже, пассажирский и грузовой. На доме и в подъезде установлены видеокамеры, на въезде во двор установлен шлагбаум. Отличные соседи. Квартира без обременений, один собственник. Пишите, звоните, покажем в удобное для вас время.

О доме

Дом построен в 2014 г. Лифты: есть Подъезды: 1 шт. Класс энергоэффективности: B

Инфраструктура

7 100 000 ₽
14 марта
Телефон собственника

+7 90*-***-****

Поделиться
Избранное
На карте
Панорама
История цены
Похожие списком

ТомскЗеленые горкиул. Павла Нарановича

Квартира площадью 55.5 квадратных метров. Квартира расположена на последнем, шестнадцатом этаже монолитно-панельного дома, из окон которого открывается уникальный панорамный вид на город ...
6 300 000 
114 тыс. ₽/м²
Сегодня

ТомскЗеленые горкиул. Андрея Крячкова

Квартира распашная переделанная в евротрёшку: Зал кухня студия + 2 комнаты. Продаётся с мебелью и техникой. Зал кухня студия: кухонный гарнитур мебельной фабрики grol (фурнитура Hettich ...
7 600 000 
127 тыс. ₽/м²
Сегодня

ТомскЗеленые горкиул. Крячкова

Посредники мимо. Квартира с ремонтом от застройщика. Этаж 3. Новая, никто не жил. в собственности с момента постройки, абсолютно чистая, без условностей. Я сын собственника. Любая система ...
6 350 000 
107 тыс. ₽/м²
Вчера

ТомскПодсолнухиул. Герасименко

Просторная кухня, две изолированные спальни, застекленный балкон, большая лоджия, свежий ремонт, оставляю квартиру с мебелью и встроенной техникой в связи с переездом в другой город в квартире ...
8 100 000 
128 тыс. ₽/м²
Позавчера

ТомскПодсолнухиул. Герасименко

Продаю свою уютную квартиру, расположенную в октябрьском районе г. Томска по адресу ул. Герасименко 3/14. Квартира 64 м, расположена на 10 этаже 17-ти этажного ...
8 100 000 
127 тыс. ₽/м²
28 апреля

ТомскЗеленые горкиул. Архитекторов

Уютная 2-х комнатная квартира в доме 2014 года постройки. Оснащена встроенной мебелью и техникой. Единственная, граничащая с соседями стена шумоизолирована. Санузел раздельный. Из окон ...
8 000 000 
153 тыс. ₽/м²
27 апреля

Открыть полный доступ

Введите ваш код доступа к категории «Продажа 2-х комнатных квартир»

Нет кода?

Вы можете открыть полный доступ к контактам собственников в объявлениях, фотографиям, истории стоимости объектов недвижимости используя код доступа ... подробнее

Стоимость 1 м², квартиры, Томск, Зеленые горки

2-х ком. квартиры, Зеленые горки

122 470 ₽/м²

%
1,27%

Среднее по Томску

129 400 ₽/м²

%
0,81%

По данным статистики стоимости недвижимости системы НЕАГЕНТ на 02.05.2026

Районы города

Если плохо ориентируетесь в городе или хотите узнать к какому району принадлежит улица, то вы можете использовать полную версию нашей карты районов

Следуюший совет