Продажа 2-ком. квартиры, ДОСААФ, ул. Рабочая

2-комн.

квартира

60,8 м²

общая

2 из 5

этаж

Кирпичный

Тип дома

Описание

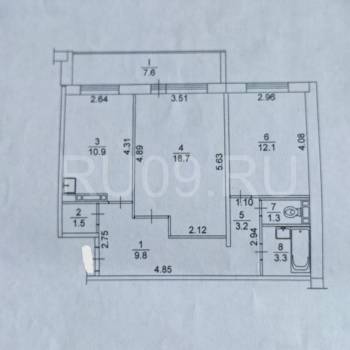
Продаю 2-х комнатную квартиру площадью 60,8 кв. м на 2 этаже 5 этажного кирпичного дома. Квартира очень хорошая. Дом новый кирпичный, индивидуальной постройки от железной дороги. Детсад в 5 метрах от дома. 2 балкона застекленный, внутри балконы отделаны облицовочным кирпичом, выходит один балкон на стадион, другой на другую сторону дома. Комнаты изолированы. Ремонт сделан весь новый, делали для себя, переехали в другой город квартира осталась. Остается бак нагреватель. Сейчас живут знакомые ребята. Завозите мебель и живите. Документы все готовы к продаже. Прописанных нет. Куплена квартира вне браке. Ни каких обременений нет. Могу предоставить выписку с госуслуг на момент сделки. Риэлторам не беспокоить. Собственник я единственный. Остается в квартире из технике Боллер и стиральная машина. Торга НЕТ.

Инфраструктура

7 600 000 ₽
125 000 ₽/м²
10 апреля
Контакт собственника
Поделиться
Избранное
На карте
Панорама
История цены
Похожие списком

ТомскОктябрьский рынокул. Мичурина

Продаю 2-х комнатную квартиру площадью 41,5 кв. м на 9 этаже 10 этажного кирпичного дома. Квартира с ремонтом на девятом этаже кирпичного дома. Комнаты изолированные. Есть балкон с остеклением ...
7 000 000 
169 тыс. ₽/м²
Сегодня

ТомскВторой Томск

Кирпичный дом (это тепло и тишина). Ключевое преимущество: Над вами никого нет. Никто не затопит, не зашумит и не испортит настроение. Подъезд чистый, дом под управлением ЖК никаких сюрпризов ...
7 500 000 
146 тыс. ₽/м²
Сегодня

ТомскДОСААФИркутский тракт

Объявление от собственника. Продается 2 ух комнатная квартира улучшеной планировки, общей площадью 60,7 кв. Просторная кухня-гостиная 32,3 кв и уютная спальня площадью 13 кв. Перепланировка ...
8 200 000 
135 тыс. ₽/м²
Позавчера

ТомскОктябрьский рынокул. Мичурина

Продается уютная и теплая квартира (распашонка). в квартире был сделан капитальный ремонт, полы залиты и выровнены. Стены все выровнены. В квартире 2 спальни (7 кв. м и 11 кв. м), кухня ...
7 100 000 
137 тыс. ₽/м²
28 апреля

ТомскВысотныйул. Ивана Черных

Продам распашную евротрёшку: кухня-гостиная и 2 спальни. 2 взрослых собственника. Без обременений. Удобная, функциональная планировка: кухня объединена с гостиной. Встроенная кухня, духовой ...
8 200 000 
134 тыс. ₽/м²
28 апреля

ТомскОктябрьский рынокул. Мичурина

Собственник. Светлая, уютная квартира. Хорошая планировка, комнаты изолированы друг от друга. Коридор и кухня с теплым полом, комфортная температура в квартире круглый год. Добротный кухонный ...
6 650 000 
136 тыс. ₽/м²
26 апреля

Открыть полный доступ

Введите ваш код доступа к категории «Продажа 2-х комнатных квартир»

Нет кода?

Вы можете открыть полный доступ к контактам собственников в объявлениях, фотографиям, истории стоимости объектов недвижимости используя код доступа ... подробнее

Средняя стоимость м², квартиры, Томск, ДОСААФ

2-х ком. квартиры, ДОСААФ

121 510 ₽/м²

%
0,83%

Среднее по Томску

129 600 ₽/м²

%
0,96%

По данным статистики стоимости недвижимости системы НЕАГЕНТ на 01.05.2026

Наш твиттер X

Twitter Записки модератора, интересные отрывки из объявлений - twitter.com/neagent_info

Следуюший совет