Продажа 1-к квартиры, ЖК OK SALUT, ул. 2-я Луговая

1-комн.

квартира

50 м²

общая

2 из 9

этаж

Монолитный

Тип дома

Описание

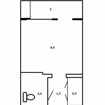
Продаю 1-комнатную квартиру площадью 50 кв. м на 2 этаже 9 этажного монолитного дома. Отличная квартира в 5 минутах от набережной Хороший дизайнерский ремонт с открытой планировкой Дорогая инженерная сантехника с фильтраций в санузле широкоформатный керамогранит Чистовая сантехника от немецкого производителя kiudy, встроенная душевая система Просторная гардеробная со стиральной машиной и всеми коммуникациями Напольное покрытие ламинат 36 класса с восковым замком (толщина доски 1,5 см) ощущения как от паркета Вся мебель и техника остается в квартире.

Жилой комплекс

Район

Зарека (Старая Зарека, Заречный) показать на карте

Инфраструктура

6 490 000 ₽
129 800 ₽/м²
9 января
Контакт собственника

+7 9**-***-****

Поделиться
Избранное
На карте
Панорама
История цены
Похожие списком

ТюменьИсторическийул. Володарского

Лучший вид из окна на набережную и Мост Влюблённых.- Единственный жилой дом в Тюмени со встроенным увлажнением воздуха в каждой квартире. Одна квартира на этаже.- Возможна рассрочка.- Возможен ...
60 000 000 
295 тыс. ₽/м²
Вчера

ТюменьЗарекаул. Газовиков

Продаётся стильная 1 + квартира 39,73 м в современном ЖК Европейский квартал, г. Тюмень. Я - единственный собственник, без обременений. Квартира полностью новая никто не проживал. Выполнен ...
9 200 000 
232 тыс. ₽/м²
Вчера

ТюменьЗарекаул. Газовиков

Весь апрель цена ниже на 900 000. Собственник. Только сообщения. Продаётся действительно редкая для Тюмени 1-комнатная квартира open space. Это не типовая однушка и не ремонт под продажу ...
12 900 000 
331 тыс. ₽/м²
Вчера

ТюменьЗарекаул. 2-я Луговая

Продаются апартаменты площадью 17,8 кв. м в современном ЖК Салют. Удобное расположение: рядом торговый центр, вся необходимая инфраструктура в шаговой доступности. Хорошая транспортная ...
3 000 000 
169 тыс. ₽/м²
Вчера

ТюменьЗаречный 1 мкр.ул. Газовиков

Продаю 1-комнатную квартиру площадью 17 кв. м на 3 этаже 8 этажного панельного дома. Квартира с дизайнерским ремонтом в панельном доме. Собственник.  ...
2 500 000 
147 тыс. ₽/м²
Вчера

ТюменьЗарекаул. Береговая

Европейский берег 2.0. Дом Канны. Студия, видовая на реку. Переуступка по ДДУ. Сдача 2027. На основных сайтах выставлена, звонки только по покупке. Собственник. ...
5 500 000 
239 тыс. ₽/м²
Вчера

Открыть полный доступ

Введите ваш код доступа к категории «Продажа 1-комнатных квартир»

Нет кода?

Вы можете открыть полный доступ к контактам собственников в объявлениях, фотографиям, истории стоимости объектов недвижимости используя код доступа ... подробнее

Цена за 1 м², квартиры, в Тюмени, Зарека

1-ком. квартиры, Зарека

192 560 ₽/м²

%
2,18%

Среднее по Тюмени

151 300 ₽/м²

%
1,5%

По данным статистики стоимости недвижимости системы НЕАГЕНТ на 03.05.2026

Наш твиттер X

Twitter Записки модератора, интересные отрывки из объявлений - twitter.com/neagent_info

Следуюший совет