Продам 2-х комн. квартиру, ЖК Парк Победы, ул. Героя Пешкова

2-комн.

квартира

53 м²

общая

15 из 24

этаж

Блочный

Тип дома

Описание

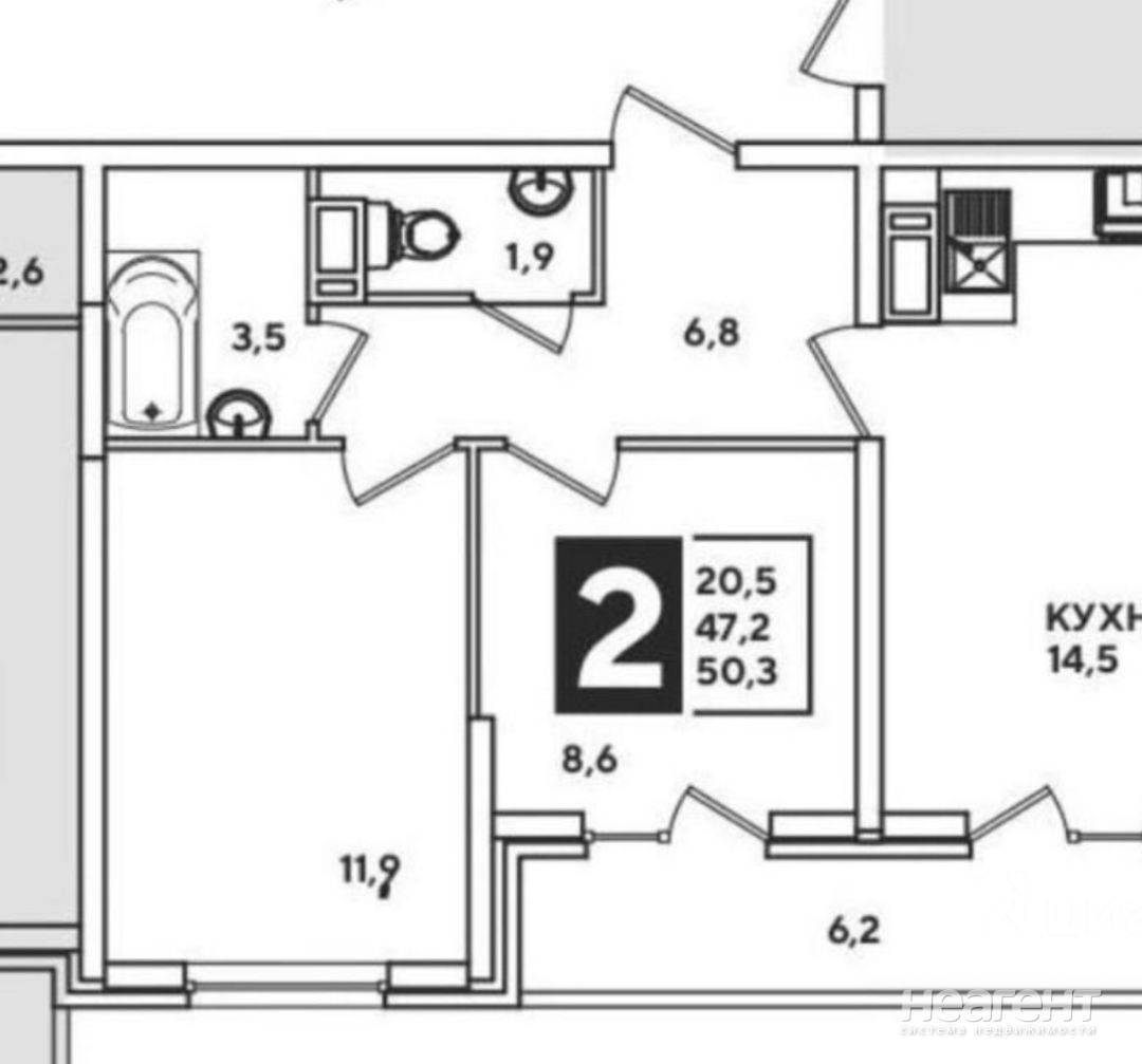
Продаю 2-х комнатную квартиру площадью 53 кв. м на 15 этаже 24 этажного блочного дома. Продам отличную 2 х комнатную квартиру. Предчистовая отделка, есть видео полное. Без ограничений, без использования мат капитала. Покупалась за наличку, один собственник. Возможна продажа в ипотеку, риэлторы только с клиентом. Нахожусь в другом городе, поэтому сначала сообщение, потом звонок, так как разница во времени большая, продажа не срочная.

О доме

Дом построен в 2022 г. Лифты: есть Подъезды: 1 шт.

Район

Энка (Поселок им. Жукова) показать на карте

Инфраструктура

Магнит ~ 6 мин
6 800 000 ₽
128 302 ₽/м²
1 апреля
Контакт собственника

+7 9**-***-****

Поделиться
Избранное
На карте
Панорама
История цены
Похожие списком

КраснодарБаскет-холлул. Конгрессная

Есть срочность. Продается от собственника квартира жилом комплексе «Отражение». Квартира светлая, теплая, возможность перенести мокрые точки без согласования на законных основаниях (1 этаж) ...
5 200 000 
87 тыс. ₽/м²
Сегодня

КраснодарБаскет-холлул. Григория Булгакова

Продается стильная двухкомнатная квартира с дизайнерским ремонтом в новом доме, построенном в 2022 году. Общая площадь квартиры составляет 60,2 кв. м, из которых 16,8 кв. м приходится на ...
9 300 000 
154 тыс. ₽/м²
Сегодня

Краснодар2-я Площадкаул. Валерия Вишневецкого

Квартира с евроремонтом в кирпичном доме, построенном в 2021 году. Все комнаты изолированы, что обеспечивает комфорт и приватность. Из окон открывается вид на тихий двор, где расположена ...
6 500 000 
108 тыс. ₽/м²
Сегодня

КраснодарЭнкаул. Академика Федорова

Дом одноподъездный. Во дворе своя котельная. Подъезд всегда чистый и ухоженный. Высота потолков составляет 2.7 метра, что добавляет пространству воздуха и света. Жилая площадь — 35,3 кв ...
7 000 000 
107 тыс. ₽/м²
Час назад

КраснодарБаскет-холлул. Конгрессная

Продам уютную функциональную евро трешку после свежего дизайнерского ремонта 2021 года полностью укомплектованную мебелью и бытовой техникой по принципу «заходи и живи». у квартиры уникальная ...
11 980 000 
158 тыс. ₽/м²
Пару минут назад

КраснодарБаскет-холлул. Конгрессная

Продам уютную функциональную евро трешку после свежего дизайнерского ремонта 2021 года полностью укомплектованную мебелью и бытовой техникой по принципу «заходи и живи». у квартиры уникальная ...
11 980 000 
156 тыс. ₽/м²
Пару минут назад

Открыть полный доступ

Введите ваш код доступа к категории «Продажа 2-х комнатных квартир»

Нет кода?

Вы можете открыть полный доступ к контактам собственников в объявлениях, фотографиям, истории стоимости объектов недвижимости используя код доступа ... подробнее

Средняя цена м², квартиры, Краснодар, Энка

2-х ком. квартиры, Энка

128 500 ₽/м²

%
2,82%

Среднее по Краснодару

140 960 ₽/м²

%
0,16%

По данным статистики стоимости недвижимости системы НЕАГЕНТ на 23.04.2026