Продам 2-к квартиру, ФМР (улица Казбекская)

2-комн.

квартира

64,9 м²

общая

1 из 16

этаж

Монолитный

Тип дома

Описание

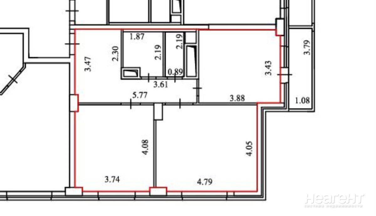
Продаю 2-х комнатную квартиру площадью 64,9 кв. м на 1 этаже 16 этажного монолитного дома. Пишите в ЧАТ пожалуйста Можно под коммерцию. Проходное место. Есть регулярные запросы от потенциальных арендаторов. Внутри помещения нет ни одной несущей стены. Доступна любая перепланировка. От собственника Из окна сразу выход на строящаяся муниципальная школа (3 этажа готово). Уже построен и работает муниципальный детский сад рядом со школой. Район тихий. Хорошая управляющая компания.

О доме

Дом построен в 2012 г. Лифты: есть Подъезды: 2 шт. Класс энергоэффективности: B

Район

ФМР (Фестивальный микрорайон) показать на карте

Инфраструктура

9 500 000 ₽
146 379 ₽/м²
10 декабря 2025
Контакт собственника
Поделиться
Избранное
На карте
Панорама
История цены
Похожие списком

КраснодарФМРул. Казбекская

Квартира в районе ФМР, собственник. Квартира светлая, просторная и очень уютная, с удобной планировкой. Отлично подойдёт как для комфортного проживания, так и для инвестиций. Дом расположен ...
19 888 000 
268 тыс. ₽/м²
Вчера

КраснодарФМРул. Совхозная

Квартира в Фестивальном районе, одном из самых комфортных и востребованных районов города. ЖК премиум класса Седьмой континент. Дом с закрытой территорией, охраной и консьерж-сервисом. ...
28 000 000 
269 тыс. ₽/м²
Вчера

КраснодарФМРул. Ковалева

Уютная Дом панельного типа, построен в 1973 году. в квартире выполнен косметический ремонт, комнаты изолированные. Окна квартиры выходят на тихую зону с соснами. Балкон остеклен. Есть домофон ...
6 000 000 
137 тыс. ₽/м²
Вчера

КраснодарФМРул. Тургенева

Квартира находится в лучшем районе города, шаговая доступность всего: остановки, школа, магазины Магнит. Табрис. Пятерочка, транспортная развязка во все стороны. Ремонт не делался, поскольку ...
5 900 000 
136 тыс. ₽/м²
Позавчера

КраснодарФМРул. Яна Полуяна

Агентам не беспокоить. Двухкомнатная квартира в районе с развитой инфраструктурой.  ...
6 500 000 
137 тыс. ₽/м²
Позавчера

КраснодарФМРул. Котовского

Квартира в Фестивальном микрорайоне Краснодара. Отличное предложение для комфортной жизни или выгодной инвестиции. Квартира расположена на 4 этаже 5-этажного кирпичного дома одного из самых ...
6 200 000 
137 тыс. ₽/м²
Позавчера

Открыть полный доступ

Введите ваш код доступа к категории «Продажа 2-х комнатных квартир»

Нет кода?

Вы можете открыть полный доступ к контактам собственников в объявлениях, фотографиям, истории стоимости объектов недвижимости используя код доступа ... подробнее

Средняя цена м², квартиры, Краснодар, ФМР

2-х ком. квартиры, ФМР

170 760 ₽/м²

%
1,2%

Среднее по Краснодару

141 290 ₽/м²

%
0,15%

По данным статистики стоимости недвижимости системы НЕАГЕНТ на 03.05.2026