Продаю дом, ЦМР (ул. Гудимы)

34 м²

общая

Косметический

Состояние ремонта

Описание

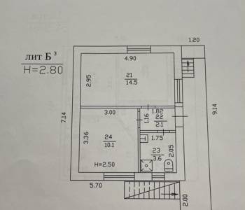
Продаю дом площадью 34 кв. м на участке 1 сотка. Продаётся жилой дом в центре Краснодара (район Медицинского Университета), общая площадь 34,4 кв. м, в том числе жилая 22,4 кв. м; кухня 7,4 кв. м ; прихожая 4,6 кв. м. Имеется не большой приусадебный участок.

Район

ЦМР (Центральный микрорайон) показать на карте
3 000 000 ₽
88 235 ₽/м²
28 апреля
Контакт собственника
Поделиться
Избранное
На карте
Панорама
История цены
Похожие списком

Краснодарп. Новый

Продаю дом площадью 90 кв. м на участке 5 соток. Просторный кирпичный дом со своим участком в тихом и уютном районе. В 10 ти минутах от города. В дом заведен газ, подключен центральный водопровод ...
8 900 000 
99 тыс. ₽/м²
Сегодня

Краснодарп. Новый

Продаю дом площадью 180 кв. м на участке 12 соток. Собственник. Сначала чат авито, потом созвон Шикарный дом, сауна с душевой и комнатой отдыха, два санузла в доме, третий на улице, капитальные ...
17 970 000 
100 тыс. ₽/м²
Сегодня

КраснодарЦМРул. Коммунаров

Продаю дом площадью 50 кв. м на участке 1 сотка. Дома. Срочная продажа. Дом, где два отдельных входа, две квартиры. По документам квартиры. На каждую документ на собственность, со своим ...
4 900 000 
89 тыс. ₽/м²
Сегодня

КраснодарЦМРул. Суворова

Продаю дом площадью 97 кв. м на участке 2,8 соток. Добрый день, продам 2-х этажный дом в старом центре краснодара. Два этажа раздельные, на каждом этаже своя кухня и совмещенный санузел ...
14 500 000 
149 тыс. ₽/м²
Вчера

Краснодарп. Новый

Продаю дом площадью 100 кв. м на участке 3,5 соток. Продаётся кирпичный дом, построенный в 2022 году, с общей площадью 100 м. Расположен на участке ИЖС. Дом одноэтажный, включает три комнаты ...
6 500 000 
65 тыс. ₽/м²
28 апреля

КраснодарЦМРул. Мира

Продаю дом площадью 76 кв. м на участке 20 соток. Жилой дом, он разделён на два входа, по факту две раздельные квартиры со своим сан узлом газофикацией, можно в одной половине дома жить ...
8 000 000 
105 тыс. ₽/м²
24 апреля

Открыть полный доступ

Введите ваш код доступа к категории «Продажа домов»

Нет кода?

Вы можете открыть полный доступ к контактам собственников в объявлениях, фотографиям, истории стоимости объектов недвижимости используя код доступа ... подробнее

Стоимость 1 м², дома, Краснодар, ЦМР

Дома, дачи, ЦМР

159 230 ₽/м²

%
1,72%

Среднее по Краснодару

132 820 ₽/м²

%
1,18%

По данным статистики стоимости недвижимости системы НЕАГЕНТ на 01.05.2026