Продаю 2-комн. квартиру, ул. Береговая

2-комн.

квартира

44 м²

общая

9 из 25

этаж

Описание

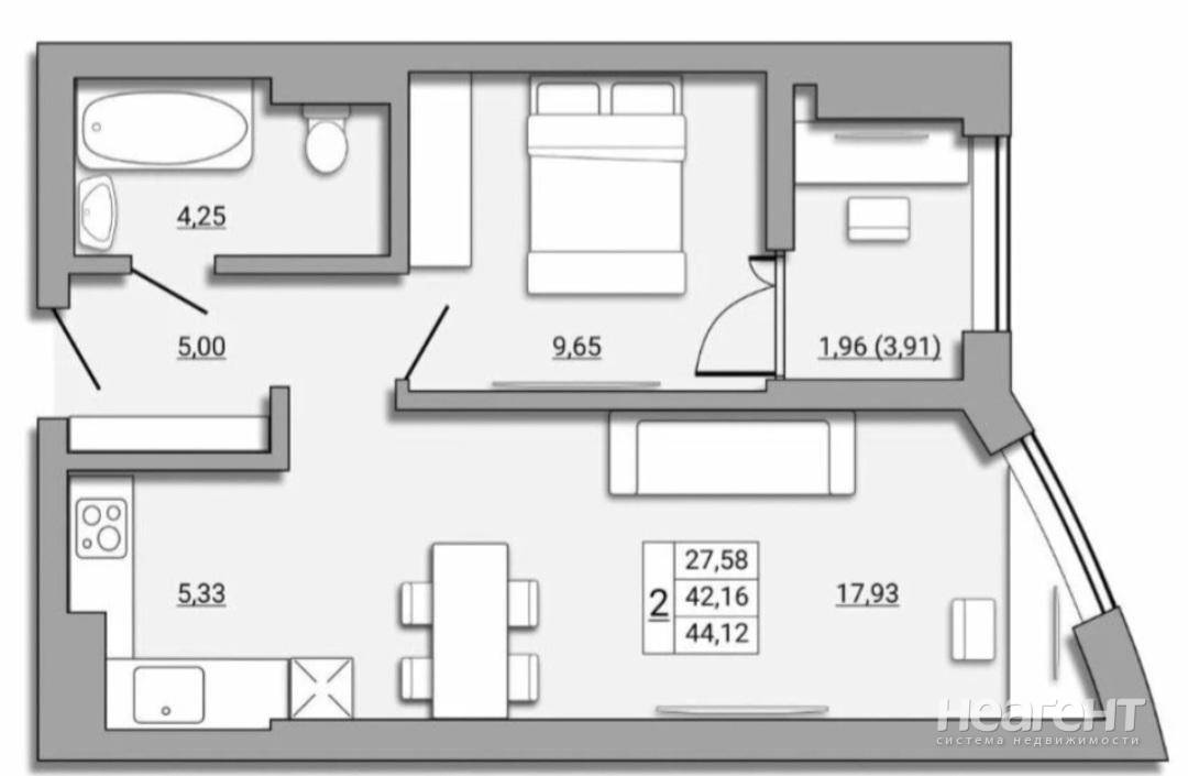
Продаю 2-х комнатную квартиру площадью 44 кв. м на 9 этаже 25 этажного монолитного дома. Центр, район театральной площали. Кв в элитном доме. Евродвушка после строителей. Отличный вид на зеленый остров.
5 500 000 ₽
125 000 ₽/м²
27 марта
Контакт собственника
Поделиться
Избранное
На карте
Панорама
История цены
Похожие списком

Ростов-на-ДонуКировскийул. Адыгейская

Агентам не беспокоить. Квартира в самом центре города, выход на пушкинскую сразу. До всех центральных развязок 5 минут. Лучше района нет. Я студентка медицинского университета, жила одна ...
7 550 000 
169 тыс. ₽/м²
Сегодня

Ростов-на-ДонуПролетарскийул. Нижегородская

Предлагаем к продаже светлую и функционально спланированную квартиру в престижном районе центра Ростова на Дону. Здесь сочетается удобство городской жизни и спокойствие уединённого места: ...
16 100 000 
229 тыс. ₽/м²
Сегодня

Ростов-на-ДонуКировскийул. Красных Зорь

Продаю 2 x-комнатную полностью оснащенную и подготовленную под проживание (или сдачу) квартиру в историческом центре г. Ростов-на-Дону (пересечение Красных Зорь/Богатяновский спуск, (пешком ...
5 690 000 
129 тыс. ₽/м²
Вчера

Ростов-на-ДонуНахичеваньул. 5-я Линия

Двухкомнатная квартира в центре город, рядом с Театральной площадью. Светлые комнаты, паркет, высокий потолок, кладовка, антрисоли, совмещенный санузел. Высокий первый этаж. Все окна выходят ...
4 900 000 
136 тыс. ₽/м²
Позавчера

Ростов-на-ДонуПролетарскийул. Нижегородская

Квартира с евроремонтом в жилом комплексе Тихий Дон. Полноценная 2-х комнатная квартира (по документам 2 комнаты). Из окон открывается потрясающий вид на город и реку, юго-западная сторона-светлая ...
11 500 000 
221 тыс. ₽/м²
Позавчера

Ростов-на-ДонуКировскийул. Бориса Слюсаря

Чистовой ремонт, кухня смежная с комнатой, можно разделить при желании. Цена договорная. Подробности по телефону. ...
7 250 000 
139 тыс. ₽/м²
Позавчера

Открыть полный доступ

Введите ваш код доступа к категории «Продажа 2-х комнатных квартир»

Нет кода?

Вы можете открыть полный доступ к контактам собственников в объявлениях, фотографиям, истории стоимости объектов недвижимости используя код доступа ... подробнее

Цена за 1 м², квартиры, в Ростове-на-Дону, Кировский

2-х ком. квартиры, Кировский

183 850 ₽/м²

%
1,24%

Среднее по Ростову-на-Дону

146 030 ₽/м²

%
0,31%

По данным статистики стоимости недвижимости системы НЕАГЕНТ на 01.05.2026