Продажа 4-х к квартиры, ул. Красных партизан

4+ комн

квартира

62,3 м²

общая

4 из 5

этаж

Кирпичный

Тип дома

Описание

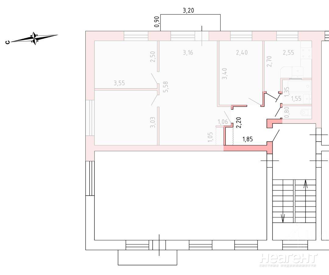
Продаю 4-х комнатную квартиру площадью 62,3 кв. м на 4 этаже 5 этажного кирпичного дома. Фото вы просмотрели, переходим к деталям. Проедается просторная четырехкомнатная квартира в центре Краснодара, угол улиц Красных Партизан и Рашпилевской. Один квартал отделяет от улицы Красной. Идеальное сочетание центра города, со всей ему доступной инфраструктурой и наличие загородной тишины. В ленте фото вы видели двор, большие деревья, которые и атмосферу создают и шумы поглощают и микроклимат создают, также деревья излюбленное место певчих птиц, в сезон по ночам поют соловьи. Расположение окон на две стороны обеспечивает пространство светом и кислородом, это позволяют корректировать климат без использования техники в теплый сезон. Окна четырёх комнат выходят на восток. На территории, есть спортивная, детская и тренажёрная площадки, что также вы видите на фото. Квартира требует ремонта. Это дает возможность создать дом вашей мечты. Межкомнатные стены квартиры не несущие позволит адаптировать пространство под ваш вкус и удобство. С размерами комнат можете ознакомится в ленте фото, там представлен план. Окна заменены. Балкон не застеклен. Общая площадь квартиры - 62,3 кв. м. Расположена на 4-м этаже. Стены у дома кирпичные, обеспечивают отличную тепло- и шумоизоляцию. Дом газифицирован. Проведён капитальный ремонт крыши и подъезда, заменены все коммуникации. С момента заселения семья владеет квартирой. От лица владельцев сказать можем следующее: территориальное расположение дома супер, соседи прекрасные, квартира зимой теплая, в жаркое время года открытые окна отлично справляются с задачей охлаждения, во дворе тихо. в шаговой доступности детские сады, школы, банки, магазины, парки, прогулочные зоны, торговые и развлекательные центры, кафе и рестораны. Продажа квартир в доме редкое явление, дом действительно отличный и расположение. Если еще есть вопросы пишите. Риелторам обращаться только в случае наличия реального клиента, договора сотрудничества не заключаю. Прошу уважать время друг друга. Спасибо за понимание.

О доме

Дом построен в 1973 г. Подъезды: 4 шт. Класс энергоэффективности: E

Район

ЦМР (Центральный микрорайон) показать на карте
7 800 000 ₽
125 201 ₽/м²
19 апреля
Контакт собственника

+7 9**-***-****

Поделиться
Избранное
На карте
Панорама
История цены
Похожие списком

КраснодарФМРул. Гаврилова

Собственник, в собственности более 3 х лет. ЖК Триумф. Новый дизайнерский ремонт, вся мебель и бытовая техника, в квартире никто не жил. Встроенные посудомоечная машина, микроволновая печь ...
41 500 000 
288 тыс. ₽/м²
Сегодня

КраснодарЦМРул. Хакурате

Продам замечательную квартиру БЕЗ ПОСРЕДНИКОВ. Цена за наличку. Звонить только при намерении приобрести квартиру и наличии денег на ее покупку. Смотрите фото. Квартира расположена в самом ...
7 900 000 
133 тыс. ₽/м²
Сегодня

КраснодарЦМРул. Бабушкина

Продам замечательный видовой пентхаус. С большой панорамной застеклённой террасой. Находящийся на двух последних этажах высотки в самом центре города. Планировка свободная, можно воплотить ...
24 999 046 
120 тыс. ₽/м²
Позавчера

КраснодарЦМРул. Красных партизан

Квартира на 1-м этаже 10 этажного дома, угловая с общей площадью 77 кв. м. Только после ремонта - никто не жил. Поделена на 4 студии - 21, 21,13 и 12 кв. м. Общий коридор 7 кв. м. в каждой ...
11 900 000 
155 тыс. ₽/м²
25 апреля
1

КраснодарЦМРул. Хакурате

Эксклюзивная квартира в самом центре города. Квартира полностью реконструирована с нуля под дизайнерский проект. Изначально был старый ремонт 70-х годов выполнен полный демонтаж до коробки: ...
16 950 000 
269 тыс. ₽/м²
18 апреля

КраснодарФМРул. Гаражная

Двухуровневый пентхаус с террасой и панорамными видами в центре города Если вы ищете не просто квартиру, а пространство уровня private residence этот объект закрывает запрос полностью. ...
35 000 000 
124 тыс. ₽/м²
15 апреля

Открыть полный доступ

Введите ваш код доступа к категории «Продажа 4-х и более комнатных квартир»

Нет кода?

Вы можете открыть полный доступ к контактам собственников в объявлениях, фотографиям, истории стоимости объектов недвижимости используя код доступа ... подробнее

Средняя стоимость м², квартиры, Краснодар, ЦМР

4-х и более ком., ЦМР

184 670 ₽/м²

%
0,9%

Среднее по Краснодару

141 650 ₽/м²

%
1,14%

По данным статистики стоимости недвижимости системы НЕАГЕНТ на 01.05.2026